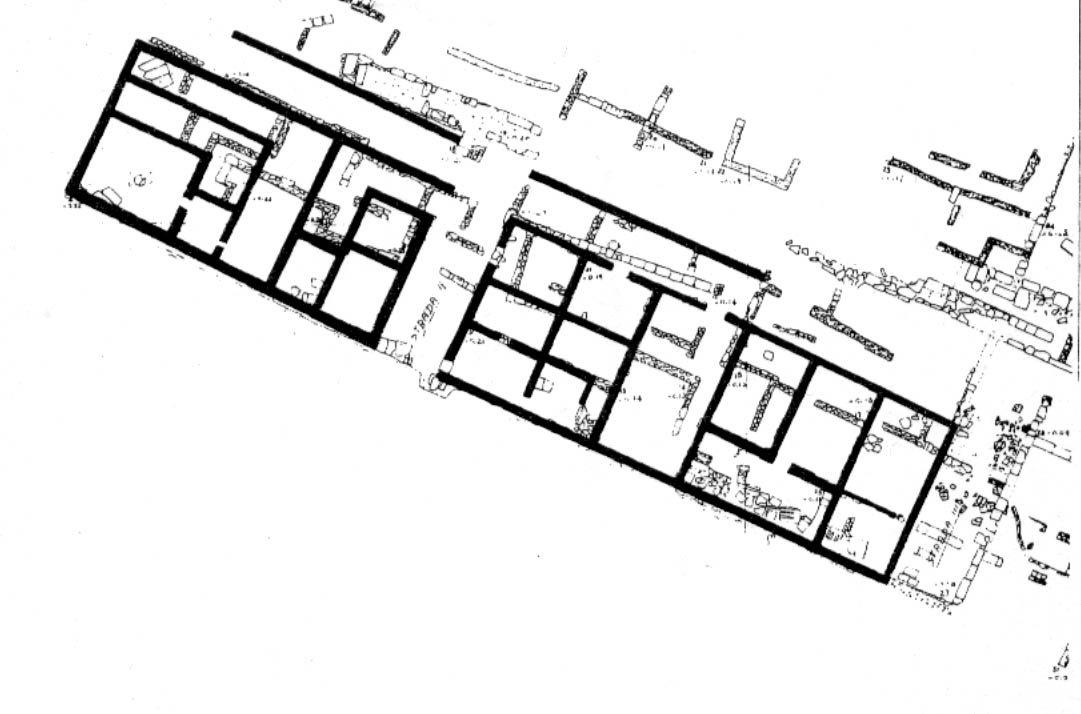
Fig. 8 — Gela. Pianta di abitazioni del V secolo a.C. (DE MIRO 1979)