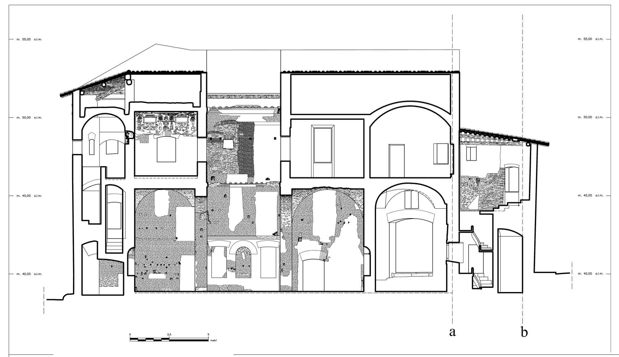
Figura 5 — Sezione-prospetto TT’ (indicata in pianta nella fig. 4)