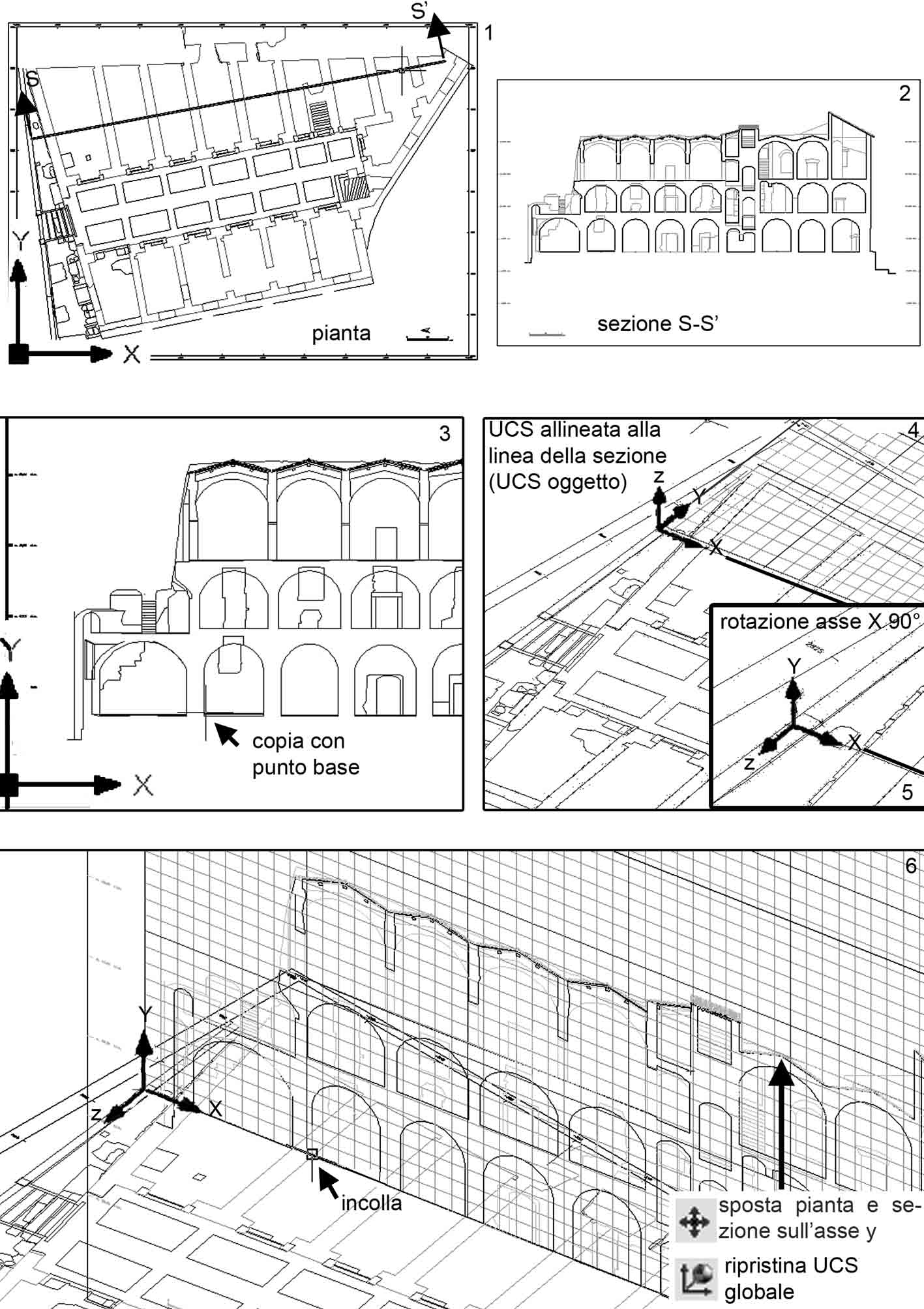
figura 89 — Georeferenziazione di pianta e sezione nello spazio 3d