Il modello analitico della Grande Aula e del Corpo Centrale 
 
clic sulle immagini per ingrandirle
 
 
 
 
 
Localizzazione  
della Grande Aula 
e del Corpo Centrale 
Lo stato attuale 
Veduta da SO
Lo stato attuale 
Veduta da NE
Lo stato attuale 
Veduta da NO
 
 
Sovrapposizione  
del modello analitico 
al modello schematico
Ricostruzione  
dello stato originario 
Veduta da SO
Ricostruzione  
dello stato originario 
Veduta da NE
Ricostruzione  
dello stato originario 
Veduta da NO
 
 
 
 
Vedute assonometriche da SO degli ambienti interni  (stato attuale) 
Grande Aula 
I  livello
 
II  livello 
 
III  livello
 
IV  livello
 
V  livello
Corpo Centrale 
I  livello
 
II livello 
 
III  livello 
 
IV  livello
 
V  livello
Grande Aula 
Sezione trasversale
Corpo Centrale 
Sezione trasversale
Grande Aula 
Sezione longitudinale 
ambienti settore E (da E)
Corpo Centrale 
Volte di copertura degli ambienti del III livello
Corpo Centrale 
Tetto moderno sugli ambienti del IV livello 
 
 
La ricostruzione dello stato originario con la mappatura dei materiali edilizi 
 
   Data la completa scomparsa di tutti i rivestimenti originali nei corpi di fabbrica della parte superiore dei “Mercati” — pavimenti, intonaci ed eventuali incrostazioni marmoree — la mappatura restituisce una visione puramente “ingegneristica” dell’edificio in cui sono mostrate le tecniche edilizie utilizzate. Si può dire che le immagini dei render danno conto di una determinata fase del cantiere antico, quella che segue il completamento delle strutture portanti e precede la messa in opera delle finiture. I muri si presentano pertanto nella loro nudità mostrando il paramento in opera laterizia e si distinguono nettamente dall’opera cementizia delle volte, che sono raffigurate nel modello così come dovevano apparire subito dopo lo smontaggio delle centine. In tutti gli ambienti è presente un piano pavimentale omogeneo in opus spicatum che non era destinato a restare in vista ma vuole rappresentare lo strato di preparazione di pavimenti più pregiati, forse a lastre di marmo o a mosaici geometrici come attestato nella zona inferiore dei “Mercati” e di cui non è rimasta alcuna traccia a causa del lungo riuso. Cortili e terrazze si distinguono dagli ambienti interni per una pavimentazione in mosaico grigio monocromo che si è conservata in alcuni spazi esterni e che in questo caso può considerarsi invece un rivestimento definitivo.  
      Le immagini che presento qui sotto possono essere ingrandite, come tutte le altre, con un clic del mouse. Il collegamento rimanda a una pagina contenente la stessa immagine in grande formato, una fotografia dello stato attuale - anche questa da ingrandire con un clic - e una didascalia in cui la ricostruzione viene motivata  con la interpretazione delle strutture conservate.
 
Vedute degli esterni
 
 
Esterni. Localizzazione delle figure 1-9.
1 - Grande Aula. Lato nord
2 - Grande Aula. Angolo SO
3 - Corpo Centrale. Settore N. Lato SO
4 - Corpo Centrale.Settore S. Lato O
5 - Corpo Centrale 
    Settore S. Lato O
6 - Corpo Centrale. Ingresso 
    alla scala del settore S
7 - Corpo Centrale. Lato SE 
 
8- Corpo Centrale. Lato NE
9 - Grande Aula. Lato E
 
Vedute degli interni
 
 
I  livello. Localizzazione delle figure 10-12
10
11
 
12
 
 
 
II  livello. Localizzazione delle figure 13-16
13
14
            
15
16
 
 
III  livello. Localizzazione delle figure 17-22
17
18
19
20
21
22
 
 
IV  livello. Localizzazione delle figure 23-26
23
24
25
26
 
 
Le animazioni 
 
"Viaggio virtuale nella Grande Aula" 
Animazione girata per il Museo dei Fori Imperiali 
ai Mercati di Traiano 
 
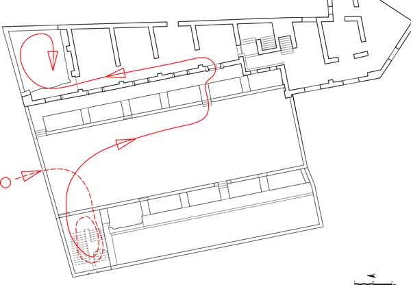
La camera entra nell'edificio per il portale N, attraversa la Grande Aula, sale al piano superiore per il corpo scala SE, percorre la galleria occidentale, ritorna al piano terreno della Grande Aula scendendo il ricostruito corpo-scala NO
 
 
La salita all'ultimo piano dell'edificio della Grande Aula 
 
Partendo dal piano terreno della Grande Aula si sale per le rampe del ricostruito corpo-scala NO fino all'ultimo livello dell'edificio; il percorso attraversa la terrazza sopra la Grande Aula e si conclude all'interno degli ambienti sul lato a monte.
 
Il "piano nobile" del Corpo Centrale 
 
Si entra nell'edificio del Corpo Centrale per il portale settentrionale; si attraversa il vestibolo e una serie di ambienti con nicchie alle pareti tra i quali un piccolo cortile; il percorso si conclude nella sala principale absidata. 
 
 
 
 
 
 
 
 
 
SITO