Marco Bianchini 
 
ARCHITETTURA  E  URBANISTICA 
DELLE  COLONIE  GRECHE  D'OCCIDENTE
 
 
 
 
 
 
 
 
 
 
 
 
 
 
 
 
 
 
 
 
 
10) Ekklesiasteria e teatri 
 
Nei primi tempi gli spettatori seguivano cerimonie e pubblici spettacoli radunandosi su impalcature lignee a gradoni (ikria). Una di queste venne distrutta dal fuoco a Metaponto alla fine del VII secolo; lo strato di bruciato è stato individuato da uno scavo archeologico. Lo strato presentava una sezione a cuneo che ha fatto comprendere che si trattava di una struttura discendente verso l’orchestra, delimitata sul retro da una parete verticale.  Dopo l’incendio venne costruito al suo posto un edificio permanente (fig. 1). Era costituito da un grande terrapieno, contenuto lungo il perimetro da un alto muro in opera quadrata e discendente verso il centro; era tagliato da due grandi dromoi, al centro risultava uno spazio rettangolare un po’ più largo dei due corridoi dove si svolgevano gli spettacoli. Si trattava di rappresentazioni teatrali piuttosto che di adunanze politiche.  In questo edificio, che è stato ristrutturato nel V secolo con dei sedili in pietra, sul piano in terra battuta dello spazio centrale sono infatti stati trovati dei segni in gesso che, come sappiamo dalle fonti, venivano tracciati per guidare i movimenti di danza del coro. Per quanto riguarda la destinazione d’uso potremmo quindi parlare propriamente di un théatron invece che di un ekklesiasterion. Era un impianto molto grande che poteva contenere 7-8000 persone, si può dire tutta la cittadinanza, compresi forse anche coloro che abitavano nella chora. È molto raffinato il sistema in cui vengono realizzati i gradoni di pietra: bisognava raccordare lo spazio rettangolare allungato al centro dell’edificio con il perimetro perfettamente circolare, quindi il profilo dei sedili vicino il centro è ellittico; verso l’esterno tende gradualmente, in modo quasi impercettibile, alla forma circolare.  
Edifici simili si sono conservati a Poseidonia (fig. 2) e ad Agrigento (fig. 3). In questo caso possiamo parlare più propriamente di ekklesiasteria (a Poseidonia forse addirittura di bouleterion), perché sono più piccoli, quindi probabilmente erano destinati ad accogliere  delle rappresentanze di cittadini piuttosto che l’intera popolazione. Il settore centrale dell’ekklesiasterion di Poseidonia è scavato nel terreno (i gradini sono tagliati nella roccia), la parte superiore è in elevato; come a Metaponto i gradini poggiano su un terrapieno che è contenuto all’esterno da un muro in opera quadrata. Ci sono incertezze interpretative circa la conclusione dell’edificio verso l’alto. Sono state proposte due ricostruzioni alternative, con o senza loggiato; l’ekklesiasterion, che è stato datato al V secolo, avrebbe potuto contenere circa 750 persone nel primo caso, 1400 nel secondo.  
L’“ekklesiasterion” di Metaponto come edificio per spettacoli ci appare alquanto diverso dai successivi teatri greci. Siamo abituati a suddividere gli edifici per spettacoli in due tipologie fondamentali: 1) il teatro che è un edificio semicircolare perché dietro gli attori c’è la scena, per cui il pubblico assiste alla rappresentazione sedendo di fronte agli attori, 2) l’anfiteatro che è un edifico ellittico perché le competizioni che vi hanno luogo, in particolare i ludi gladiatori, possono essere osservati da qualunque direzione. L’impianto di Metaponto accoglie rappresentazioni teatrali ma ha l’organizzazione di un anfiteatro. Questo perché ci troviamo in un epoca molto antica, in cui ancora non si era sviluppata la scenografia e lo spettacolo si basava fondamentalmente sui movimenti del coro, la danza e la melodia. La scena nel teatro greco comincia a svilupparsi durante il V secolo, divenendo in seguito sempre più importante. Non a caso a Metaponto l’impianto circolare verrà successivamente  sostituito da un teatro a cavea semicircolare, più adeguato alle nuove modalità della rappresentazione.  
Il teatro a cavea (koilon) semicircolare si afferma nel mondo greco nella seconda metà del IV secolo. Nel V secolo i luoghi dove si svolgono le rappresentazioni, se profittano di un pendio naturale, sono dotati in genere di semplici gradinate rettilinee tagliate nella roccia, come ad esempio nel santuario di Despoina a Licosura (fig. 4). Carlo Anti analizzò in alcuni teatri greci le tracce che sembravano riconducibili alle fasi più antiche, in particolare nel teatro grande di Siracusa, in quello di Dioniso ad Atene e in quello del santuario di Apollo a Cirene, edifici che però furono profondamente ristrutturati nei secoli successivi per cui la lettura di questi elementi non risulta molto chiara. In qualche caso egli ha notato ai margini dell’orchestra la presenza di un canale per lo scolo delle acque piovane (euripo) composto da segmenti rettilinei, che sembrano disegnare un trapezio (fig. 5). Per cui ha ipotizzato che le cavee dei teatri greci del V secolo fossero composte da panche di legno disposte su bracci rettilinei che davano luogo a un koilon a pianta trapezoidale (fig. 6). Si tratterebbe in sostanza di una ikria che abbraccia l’orchestra, ai cui piedi scorre l’euripo che ne ricalca il profilo. L’ikria veniva a trovarsi alla base del pendio e pertanto doveva essere riservata ai personaggi più importanti, svolgendo la funzione che avrà in seguito la proedrìa. Il resto della cittadinanza sedeva disordinatamente più in alto, sul terreno naturale.  
L’impiego della pietra consentirà in seguito di realizzare cavee curvilinee; i bracci rettilinei degli impianti primitivi erano infatti condizionati dalla forma lineare delle lunghe travi di legno che sostenevano le impalcature. Come si è detto le tracce di questi teatri a cavea trapezoidale sono in realtà poco leggibili e le ricostruzioni di Anti sono state in vari casi contestate. Di questo tipo di organismi ci restano però delle realizzazioni posteriori in pietra. Un impianto di IV secolo, o forse di età ellenistica, lo troviamo a Morgantina (fig. 7).  
Tra i primi esempi di cavee teatrali curvilinee ci sono il teatro di Dioniso ad Atene e quello di Epidauro, magnificamente conservato. Abbiamo anche vari esempi in Sicilia, tra cui il teatro di Siracusa, di cui Anti aveva studiato la fase arcaica, il quale venne ristrutturato nella seconda metà del III secolo  ed è uno dei più grandi del mondo greco (fig. 8). La cavea del teatro greco è maggiore del semicerchio, quella del teatro romano è perfettamente semicircolare. La parte anteriore della cavea ellenistica del Teatro di Siracusa, eccedente rispetto al semicerchio, venne tagliata in età augustea per adeguarla ai nuovi modelli. 
Un altro discorso è quello sulla evoluzione dell’edificio scenico. Chi ha studiato i primitivi impianti, datati tra l’età arcaica e l’età classica, ha anche individuato in vari casi, sotto le scene in blocchi lapidei di epoca successiva, serie di incassi tagliati nella roccia riferibili alla primitiva skené lignea e ai cavalletti che reggevano il tavolato (tràpeza) su cui si esibivano gli attori. Questi ultimi sono riconoscibili per la forma oblunga; sono stati trovati poi numerosi fori in cui erano alloggiate le antenne a cui venivano fissati i pannelli decorati della scena (fig. 9).  
L’evoluzione dell’edificio scenico è stata studiata da Polacco per quanto riguarda il teatro di Dioniso ad Atene (fig. 10). Sintetizzando il discorso, possiamo dire che in una prima fase gli attori si esibivano su una trapeza di legno sostenuta da cavalletti, che è il primitivo palcoscenico (proskenion); alle spalle c’erano le antenne che reggevano le scene dipinte. Dietro a queste c’era un edificio, realizzato in legno nei primi tempi, che serviva da spogliatoio per gli attori (skené); in un secondo tempo venne ricostruito in pietra a pianta rettangolare. Successivamente, nell’età di Pericle, il proskenion viene avanzato, tra questo e l’edificio scenico precedente viene realizzato un altro corpo di fabbrica che è dotato di due avancorpi laterali: sono i parasceni (paraskenia), che hanno una funzione acustica perché impediscono la dispersione del suono, però probabilmente servono anche a contenere le scene che non sono più issate sulle antenne, ma scivolano lateralmente sul proskenion dalle camerette ricavate negli avancorpi. 
C’è una terza fase, probabilmente all’epoca di Licurgo nella seconda metà del IV secolo, in cui la fronte dei parasceni è qualificata da un colonnato a giorno; è l’epoca della commedia nuova, la narrazione è ambientata sia in luoghi all’aperto che dentro le case. Queste ultime vengono rappresentate dentro i parasceni; le fronti colonnate consentono agli spettatori di osservare quello che succede all’interno. Il muro dietro al proskenion comprende tre grandi porte (thyromata) da cui entrano gli attori (fig.11). Dalla porta di destra si affacciano coloro che rappresentano i personaggi provenienti dalla città o dal porto, dalla porta sinistra entrano coloro che provengono dalla campagna. Il palcoscenico, impostato su una fronte colonnata, si trova molto in alto rispetto al piano dell’orchestra perché in quest’epoca si è perso il rapporto diretto tra il coro e gli attori; questi ultimi sono diventati i veri protagonisti della rappresentazione. In età ellenistica la fronte della scena si arricchisce infine di colonne a due ordini, secondo uno schema che verrà ereditato dal teatro romano.       
Nel IV secolo viene costruito finalmente anche il koilon in pietra che ospita tutti gli spettatori. I notabili siedono nella prima fila, la proedrìa; fra questa e il resto della cavea corre l’euripo, il canale che raccoglie le acque pluviali.  
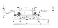
In Sicilia si hanno importanti esempi di teatri greci, molti dei quali furono trasformati in epoca romana, a Siracusa, Eloro, Palazzolo Acreide, Morgantina, Eraclea Minoa, Segesta, Monte Iato, Solunto, Tindari, Taormina.  Negli impianti originali della seconda metà del IV secolo o di età ellenistica la forma della cavea è solitamente maggiore del semicerchio ("a ferro di cavallo"); il settore centrale del koilon è incavato nella roccia; la parte anteriore, prossima all'edificio scenico, è invece impostata su terrapieni contenuti a valle da due robusti muri di contenimento simmetrici (analèmmata), convergenti verso l'orchestra circolare o a ferro di cavallo. Ai piedi degli analemmata si svolgono i due corridoi laterali (parodoi) che collegano l'orchestra con l'esteno del teatro.  Le cavee sono suddivise in cunei da scale radiali (klimakes) che consentono l'accesso degli spettatori ai sedili; orizzontalmente sono ripartite in due settori da un corridoio intermedio (diazoma).  Nel teatro di Segesta tutta la parte superiore del koilon, a monte del diazoma, è impostata su un terrapieno contenuto alle spalle da un muro perimetrale curvilineo in opera quadrata e ripartito internamente da setti radiali (fig. 12). A Segesta, come a Monte Iato (fig. 13) e a Tindari (fig. 14) i resti della parte inferiore dell'edificio scenico mostrano la presenza di due parasceni che inquadravano il palcoscenico; i frammenti architettonici superstiti attestano in tutti i casi l'esistenza di una fronte colonnata a più ordini. 
 
 
 
 
 
 
 
 
 
 
 
 
 
 
 
 
 
 
 
 
 
 
 
 
 
 
     1   
 
     2   
 
     3   
 
 
 
 
 
 
 
 
 
 
 
 
 
 
 
 
 
     4   
 
     5   
 
     6   
 
     7   
 
 
 
 
 
     8   
 
 
 
 
     9   
 
 
 
 
 
   10   
 
 
 
 
 
 
 
 
 
 
 
 
 
 
 
 
  11   
 
 
 
 
 
 
 
 
 
 
 
 
  12   
 
  13   
 
  14    
   
 precedente
 
inizio pagina
successiva