001 indice analitico pagina a iper://home.aeh|1 acquisto libro iper://home.aeh|0
 
 
 
 
 
 
 
 
 
 
 
 
 
 
 
 
 
 
 
 
 
 
 
 
 
 
Capitolo III 
Il rilievo diretto
 
 
 
1. Gli strumenti 
 
Possiamo distinguere tra gli strumenti che servono per il rilievo (fig. 23a) e quelli per il disegno. Tra i primi sarà necessario disporre di un set di metri di vario tipo, di cui i più utili sono: una fettuccia di plastica da venti metri; un flessometro di metallo da otto metri, dotato di un becco in corrispondenza dello zero che consenta di agganciarlo agli spigoli; un flessometro più piccolo e leggero, ad esempio da due metri, comodo per prendere le misure più brevi; un metro a stecca rigido, di legno o di plastica (lo standard è da due metri). Serviranno poi un cordino, lungo venti metri e oltre a seconda delle necessità, un filo a piombo, chiodi e martello, un pennarello, una livella da cantiere, di almeno 60 cm di lunghezza, per riportare le quote sulle brevi distanze. Il livello ottico si usa per misurare i dislivelli a distanze maggiori in mancanza del teodolite o della stazione totale. Si può considerare a tutti gli effetti uno strumento del rilievo diretto in quanto consente di determinare in modo immediato i valori metrici dei dislivelli con letture sulla stadia 
Uno strumento di ultima generazione molto utile per prendere le distanze in sostituzione della fettuccia metrica è il distanziometro laser portatile il quale funziona con lo stesso principio dei distanziometri dei teodoliti e delle stazioni totali. E’ un apparecchio maneggevole e leggero, dotato di un becco da appoggiare sul punto noto e che va rivolto in direzione del punto da misurare; muovendolo con la mano si effettua a occhio la collimazione della luce rossa del laser sul punto e si dà l’invio per prendere la distanza. Il valore di questa è immediatamente visualizzato sul display. Spendendo una somma modesta si trovano apparecchi di grande precisione con un raggio d’azione superiore ai cinquanta metri. Determinate situazioni limitano il suo utilizzo: all’aperto, con molta luce e sulle lunghe distanze non si riesce a vedere la luce del laser in prossimità del punto; il laser deve colpire una superficie frontale all’apparecchio, quindi misurazioni di striscio tra due punti giacenti sullo stesso piano non sono possibili; nelle trilaterazioni le distanze vanno prese sul piano orizzontale, per cui quando in presenza di dislivelli nelle misurazioni si utilizza il filo a piombo manca una superficie da colpire; su superfici scure o molto irregolari e su materiali friabili risulta meno preciso oppure non riesce a effettuare la misura. Il primo caso lo si può risolvere creando una zona d’ombra sul punto da misurare, negli altri si può ovviare mettendo in corrispondenza del punto un oggetto chiaro e piatto (ad esempio uno dei cartellini di compensato che si usano per le cassette dei materiali di scavo). L’apparecchio risulta indispensabile e di grande efficienza nella misurazione dell’altezza di volte e soffitti dal pavimento. Per sicurezza è sempre bene dare almeno due volte l’invio e confrontare i valori delle distanze visualizzate sul display 
Per il disegno, da eseguire sul campo mentre si prendono le misure, sarà necessario disporre innanzitutto di un piano d’appoggio commisurato alle dimensioni del foglio. Per un formato grande è utile una tavola di legno da poggiare su due cavalletti che potranno essere più volte facilmente spostati (fig.23b). I fogli piccoli, in formato A3 o A4, possono essere fissati a una tavoletta di compensato leggera la cui maneggevolezza risulta particolarmente comoda quando si disegnano i dettagli a mano libera (fig. 23c). E’ bene utilizzare fogli trasparenti che consentono le sovrapposizioni con la tavola del rilievo topografico, tra overlay e tra pianta e sezioni. Il materiale migliore è il poliestere, che si vende in rotoli da tagliare o in fogli di vari formati, il quale è assolutamente indeformabile, anche in caso di pioggia. Basta invece un poco di umidità per accartocciare i fogli di lucido. Può risultare utile tenere un foglio di carta millimetrata sotto quello trasparente per tracciare linee parallele e ortogonali; si tenga conto tuttavia che il reticolo della carta millimetrata è quasi sempre leggermente fuori scala, quindi le misure andranno verificate col righello. 
Servono mine dure (da 3H a 7H) per disegnare con la matita sul poliestere, morbide (HB) per la carta normale o il lucido. Completano l’attrezzatura: compasso, gomma, campana temperamine, riga, squadre, scalimetro. Quest’ultimo serve a tradurre le misure reali rispetto al rapporto di scala prescelto; è composto da sei righelli ciascuno dei quali corrisponde a un determinato rapporto di scala: per il rilievo diretto vanno bene quelli con scale comprese tra 1:20 e 1:100. È uno strumento per i principianti. In seguito ci si abitua a leggere le misure in scala su un righello normale. 
 
2. Le trilaterazioni 
 
Le misurazioni principali nel rilievo diretto vengono effettuate per mezzo di trilaterazioni, procedimento cui si è accennato nel precedente capitolo. Questo metodo consente di creare anche delle vere e proprie reti di inquadramento a triangoli le quali coprono un’area a cielo aperto oppure circondano e attraversano un edificio. E’ ovvio che realizzare una rete di inquadramento complessa, comprendente numerosi vertici, con le tecniche del rilievo diretto invece che con il teodolite e la stazione totale, risulterebbe assai scomodo, richiedendo anche molto tempo e il risultato finale sarebbe sicuramente meno preciso. Si consideri pure che in presenza di dislivelli, di continui ostacoli visivi e sulle lunghe distanze le trilaterazioni risultano poco funzionali. Inoltre in caso di accumulo di misurazioni le probabilità di propagazione degli errori sono più elevate che con il rilievo indiretto.  
Tuttavia il procedimento va conosciuto per comprendere uno dei fondamenti metodologici del rilievo ed è importante saperlo utilizzare in molte occasioni, ove potrebbe risultare invece più rapido ed economico del rilievo indiretto. È il caso ad esempio della documentazione degli scavi archeologici, in cui molte volte occorre saper agire in fretta: il rilievo di uno strato di terra appena messo in luce può essere risolto in un mezzora, consentendo la subitanea prosecuzione dello scavo. Poche triangolazioni effettuate da dei picchetti collocati stabilmente intorno al saggio si eseguono in qualche minuto e possono essere immediatamente riportate sulla carta per consentire il disegno dei dettagli. Le varie operazioni connesse all’utilizzo della stazione totale fino alla elaborazione dei dati e alla loro restituzione grafica richiederebbero in tale ipotesi molto più tempo. Va sempre considerato che uno dei vantaggi del rilievo diretto è quello di poter usufruire immediatamente delle misure prese. Anche nel caso di una ricognizione sul territorio, imbattendosi ad esempio in un muro isolato o in una cisterna risulterà più pratico effettuare seduta stante qualche trilaterazione piuttosto che tornare una seconda volta con la stazione totale al seguito (semmai si provvederà al posizionamento con GPS). Si può dire che in linea di massima quando i contesti da documentare hanno dimensioni contenute e la visuale è libera è più conveniente risolvere tutto il rilievo con misurazioni dirette.  
Le trilaterazioni si basano sul principio secondo cui da due punti noti può essere determinata la posizione di uno o più punti ignoti ubicati nell’intorno. Nelle trilaterazioni vengono misurate le distanze, utilizzando un metro sufficientemente lungo oppure un distanziometro laser, tra ciascuno dei due punti noti e il punto incognito. Le misure vengono quindi riportate sulla carta in scala.  
Si parte sempre da due punti che sono noti perché sono stati precedentemente misurati e quindi posizionati sul foglio oppure perché se ne misura in quel momento la distanza. In tal caso si traccia sul foglio un segmento (base di riferimento) che corrisponde alla distanza tra i due punti A e B situati agli estremi (fig. 24a). Con la fettuccia o il distanziometro si misura quindi la distanza tra A e un terzo punto da determinare C e poi quella tra B e C. Le misure prese si riportano sul foglio in questo modo: si apre il compasso per una lunghezza pari alla distanza tra A e il punto incognito C; si punta il compasso in A e si traccia un arco di cerchio nella direzione in cui dovrebbe approssimativamente capitare il punto C. Si fa quindi coincidere l’apertura del compasso alla distanza tra B e C; si punta il compasso in B e si traccia un altro arco. La posizione esatta del punto C corrisponderà alla intersezione dei due archi.  
Se da A e B determiniamo la posizione di un altro punto incognito D, la successiva misurazione della distanza CD ci consentirà di verificare la giustezza del rilievo (fig. 24b).  
Le trilaterazioni si usano fondamentalmente per le planimetrie e quindi vengono effettuate su un piano orizzontale. Bisogna pertanto avere cura di tenere la fettuccia metrica in piano e ben tesa, o il distanziometro in bolla, altrimenti la misura risulterà più lunga. Le operazioni devono essere svolte da due persone, a meno che non si agganci la fettuccia con una molletta a un chiodo messo sul punto oppure non si usi il distanziometro. Oltre i 15 m risulta difficile impedire la flessione della fettuccia, così le misurazioni diventano inevitabilmente meno precise. Sul lungo raggio è sicuramente consigliabile il distanziometro. 
L’ipotesi più elementare è quella del rilievo di una stanza di un edificio integro (fig. 24b). Si misura per prima cosa la lunghezza di uno dei quattro lati che costituirà la base di riferimento del rilievo. Dai due angoli A e B situati ai due estremi si misurano gli angoli opposti C e D. Unendo tutti i punti si otterrà il perimetro dell’ambiente. Le misurazioni possono essere effettuate per comodità a una certa altezza dal suolo oppure, se non ci sono ostacoli nel mezzo, stendendo direttamente la fettuccia sul pavimento in modo da essere sicuri dell’orizzontalità. 
Nelle aree archeologiche il rilievo è quasi sempre condizionato dai dislivelli, può capitare ad esempio che i punti noti si trovino sulla sommità di un muro alto un metro mentre i punti da determinare sono collocati su un altro muro di cui restano pochi filari dell’elevato. In questi casi si stende la fettuccia in piano posizionando lo zero sul punto più alto e calando il filo a piombo dall’altra parte sul punto in basso (fig. 24c). La distanza è data dalla intersezione della verticale del filo a piombo con la lunghezza riportata sulla fettuccia. La funzione del filo a piombo è quindi quella di proiettare sul piano cartesiano in cui opera la fettuccia metrica la posizione dei punti situati a un livello inferiore.  
Se tra i due punti da misurare c’è un ostacolo più alto, mentre si tenderà la fettuccia toccherà calare un filo a piombo su ciascuno dei due punti per scavalcarlo, procedimento che non è molto comodo e rischia di dare luogo a qualche imprecisione. 
A maggiore garanzia della precisione del rilievo può convenire in alcuni casi misurare la posizione di un punto da tre o più punti noti situati nell’intorno. Una trilaterazione precisa farà sì che i vari archi di cerchio tracciati sul foglio s’intersechino esattamente nello stesso punto (fig.24d n. 4). Se lo scostamento è minimo si può attuare una compensazione segnando il punto in mezzo agli incroci; se lo scostamento è sensibile vuol dire che sono stati commessi degli errori e quindi occorrerà ripetere le misurazioni (fig. 24d n. 3). In tali casi va sempre tenuto conto che l’errore può essere causato anche dallo scorretto posizionamento di uno dei punti noti da cui è stata presa la distanza (propagazione degli errori). Questo costringerà a ritornare sui propri passi e a effettuare i dovuti aggiustamenti. 
Le trilaterazioni non devono creare angoli troppo acuti o troppo ottusi in corrispondenza del vertice da misurare (fig. 24d nn. 5-8). In questi casi infatti le intersezioni dei due archi del compasso verrebbero parzialmente a sovrapporsi rendendo incerto il posizionamento del punto. Le intersezioni più nitide e precise sono quelle in cui i due archi tendono a formare un angolo retto. Angoli molto acuti sono causati da un braccio di riferimento troppo corto in rapporto alla eccessiva distanza del punto ignoto, oppure da una posizione eccentrica del punto ignoto rispetto al braccio di riferimento. Angoli molto aperti sono al contrario causati dalla esagerata distanza tra i due punti noti rispetto a un punto incognito molto vicino al braccio di riferimento.  
Per effettuare tutte le misurazioni con angolazioni corrette e per evitare il più possibile l’accumulo delle trilaterazioni (cioè la misura di punti nuovi da altri punti precedentemente trilaterati e così via) conviene iniziare il rilievo impostando una base di riferimento che consenta di abbracciare la più ampia area possibile e posizionare lungo tale allineamento una serie di punti intermedi, i quali saranno altrettanto affidabili di quelli situati ai due estremi e potranno essere utilizzati come punti di partenza per le varie trilaterazioni (fig. 25a). In questo modo se un angolo risultasse troppo chiuso o troppo aperto basterà spostarsi lungo la base di riferimento in entrambi i sensi fino a trovare l’apertura più corretta. Se si intende eseguire il rilievo di una stanza rettangolare la buona regola è quella di far coincidere la base di riferimento con uno dei lati lunghi e non con un lato corto. Valga anche l’esempio che abbiamo presentato nel capitolo precedente dove per risolvere il rilievo di un edificio in rovina composto da una fila di cinque ambienti è preferibile, se sussistono le necessarie condizioni di visibilità, impostare una base di riferimento che attraversi in lunghezza l’intero edificio, piuttosto che partire da un segmento breve corrispondente a uno dei lati delle stanze per poi procedere con trilaterazioni in sequenza. 
Conviene sempre materializzare la base di riferimento stendendo tra i due chiodi che segnano i punti estremi un cordino ben tirato, il quale serve a fissare l’esatto allineamento, insieme a una fettuccia che consentirà di misurare le distanze dei punti intermedi (fig. 25b). Fa più comodo stendere il cordino e la fettuccia direttamente sul piano pavimentale, ma nelle aree archeologiche tocca spesso fare i conti con sconnessioni del pavimento e dislivelli per cui si rende necessario legare tali strumenti a due picchetti di ferro ben piantati nel terreno, sufficientemente alti per permettere di scavalcare in orizzontale tutti gli ostacoli; in alternativa potranno essere fissati a dei chiodi piantati sui muri. Alcuni punti intermedi potranno poi essere materializzati per comodità sul pavimento con dei chiodini o il pennarello, proiettandoli dalla fettuccia con il filo a piombo. Fettuccia e cordino dovranno trovarsi in orizzontale, quindi bisognerà avere cura di posizionarne gli estremi grosso modo alla stessa quota. Questa operazione si può fare a occhio; quando si opera in pianta una inclinazione della fettuccia di un paio di gradi non altera sostanzialmente le distanze. Una perfetta orizzontalità del cordino è invece necessaria, come vedremo più avanti, per il disegno delle sezioni (fig. 30a).  
Una base di riferimento materializzata a una quota superiore a un metro e mezzo rispetto al piano di camminamento risulta scomoda per effettuare le misurazioni. Negli scavi archeologici conviene impostare il rilievo a partire da alcuni picchetti situati intorno al saggio e da tenere per tutta la durata dei lavori (a meno di un ampliamento in senso orizzontale dello scavo). In una prima fase potranno essere effettuate tutte le trilaterazioni a partire da questi oppure da una fettuccia metrica stesa tra due di essi. Una volta scesi in profondità si provvederà a trilaterare dai picchetti esterni un gruppo di picchetti interni provvisori da utilizzare per tutte le misurazioni a quel livello, i quali verranno eliminati con la prosecuzione dello scavo. Giunti a un nuovo livello sarà posizionata una nuova serie di picchetti ancora una volta a partire da quelli esterni e così via. 
I diaframmi murari vanno aggirati impostando il rilievo nella maniera più razionale. Se bisogna eseguire la pianta di due ambienti collegati da una porta è bene impostare una base di riferimento che li comprenda entrambi passando attraverso l’apertura (fig. 25c). Se i due ambienti non sono in comunicazione toccherà collocare la base di riferimento all’esterno. In questo caso sarà inevitabile un accumulo di trilaterazioni.  
Una situazione comodamente risolvibile è quella di una serie di ambienti a schiera che presentano una fronte aperta verso un vasto spazio centrale, come è il caso ad esempio delle cappelle laterali delle chiese (fig. 26a). Si colloca la base di riferimento all’esterno degli ambienti laterali secondo l’asse lungo dell’edificio (A-A’); quindi, spostandosi lungo tale allineamento, si trilaterano tutti gli spigoli esterni dei vani (B) e - se sono raggiungibili evitando trilaterazioni troppo lunghe o acute - anche quelli interni (C). Altrimenti gli angoli interni saranno trilaterati da quelli esterni con una seconda serie di misure. Una terza e ultima sequenza impostata sulle pareti laterali degli ambienti (D) potrà servire eventualmente per il rilievo di absidi e nicchie (E).  
Più problematico è il caso in cui gli ambienti laterali sono separati dallo spazio centrale da una parete in cui si aprono delle porte (fig. 26b). Questa situazione costringerà a effettuare una prima serie di trilaterazioni dalla base di riferimento (A) agli spigoli esterni delle porte (B), poi una seconda serie dagli spigoli esterni a quelli interni per ricavarne la profondità (C). Da questi ultimi bisognerà poi raggiungere gli angoli interni degli ambienti, per mezzo di trilaterazioni chiuse ed eccentriche poco affidabili (D). Servirà infine una quarta serie di trilaterazioni dalle porte e dagli angoli interni dei vani per posizionare gli angoli sul lato della porta (E) (ambiente 1). Il problema viene risolto comunemente fissando prima la faccia interna del muro in cui si apre la porta: questa viene disegnata parallela alla faccia esterna tenendo conto dello spessore della parete (ambiente 2). Lungo tale allineamento vengono quindi fissati i due angoli della stanza (E) misurandoli dagli spigoli della porta (C). Da questi due angoli vengono infine trilaterati gli angoli opposti dell’ambiente, con angolazioni più corrette rispetto alla prima soluzione (D). Questo sistema è sicuramente più razionale però ha il vizio di presumere che le due facce del muro della porta siano parallele. Nella stragrande maggioranza dei casi è così, eppure negli edifici storici può capitare di trovare dei muri a sezione trapezoidale. Quando si esegue un rilievo non bisogna mai dare nulla per scontato. Il parallelismo dei due lati del muro in un caso del genere andrà verificato perlomeno attuando dei riscontri incrociati sulle misure ed esaminando attentamente il vano della porta: se le due facce del muro non sono parallele lo spessore dovrebbe presentare valori diversi in corrispondenza delle due spalle dell’apertura. Va sempre considerato inoltre che le facce dei muri non sempre sono perfettamente dritte ma possono presentare delle curvature o degli angoli molto aperti, a volte non facilmente apprezzabili a occhio. E’ bene pertanto tendere un cordino o una fettuccia tra i due angoli per verificare l’andamento della parete. 
Una terza soluzione (ambiente 3) è quella di entrare all’interno del vano con un braccio di riferimento secondario, ortogonale a quello principale, definito da due punti trilaterati da quest’ultimo. Effettuando un traguardo questo asse verrà prolungato all’interno della stanza e potrà essere quindi utilizzato come base per le trilaterazioni. Occorre fare attenzione però che il segmento della base di riferimento secondaria trilaterato da quella principale (T1-T2) non sia troppo corto in proporzione al tratto prolungato (T2-T3) altrimenti l’orientamento di quest’ultimo potrebbe divergere sensibilmente rispetto al primo.  
Le trilaterazioni sono utili anche per il rilievo dei pavimenti. Conviene sempre misurare dei punti che definiscono degli allineamenti, ad esempio la cornice di un mosaico o una fila di lastre di travertino. Non è necessario trilaterare tutti gli allineamenti ma solo alcuni; gli altri potranno essere individuati a partire dai primi con misurazioni più semplici che esamineremo nel prossimo paragrafo.  
 
3. Il rilievo dei particolari 
 
Partendo dalla maglia dei punti ricavati con le trilaterazioni (e che si potrebbero in alternativa misurare e restituire con il teodolite o la stazione totale) si completerà la pianta con misurazioni semplici, di più facile e rapida esecuzione.  
Una delle operazioni più elementari è prendere le misure lungo un allineamento. Si fissano gli spigoli di una serie di nicchie di una parete stendendo il metro sulla superficie del muro e leggendo poi le distanze da uno dei due angoli (v. Cap. 2, fig. 22a). Allo stesso modo, una volta posizionati sul pavimento due punti che determinano l’allineamento di una fila di lastre rettangolari di marmo, si tende un metro tra l’uno e l’altro e si annotano le distanze dei giunti ortogonali. 
Da un metro steso a terra tra due punti noti si possono inoltre prendere delle brevi misure in senso ortogonale per posizionare alcuni punti situati nell’intorno (fig. 27a n. 1). Si colloca un metro rigido (ad esempio un metro a stecca) con lo zero sul punto da determinare e lo si incrocia ad angolo retto con l’altro metro (ad esempio una fettuccia). Si legge prima una lunghezza sulla fettuccia, dallo zero all’incrocio con il metro a stecca, e poi su quest’ultimo un’altra distanza in senso ortogonale. Le due misure vengono riportate in scala sul foglio utilizzando due squadre. Sulle brevi distanze (almeno fino a 50 cm) l’incrocio ad angolo retto tra i due metri si riesce a farlo a occhio; se non si è sicuri ci si può aiutare piazzando a terra una grossa squadra.  
Questo metodo si adatta per rilevare dei contorni irregolari come quello ad esempio di uno strato di terra oppure di una porzione informe di mosaico che si è conservata al centro di un ambiente (fig. 27a n. 2). Conviene trilaterare pochi punti lungo il perimetro, materializzandoli con dei chiodi; poi si collegheranno volta per volta le coppie di chiodi con un metro steso sul pavimento e utilizzando un secondo metro si prenderanno delle brevi misure in senso ortogonale per fissare la posizione di alcuni punti secondari che definiscono il contorno. Quando la densità dei punti riportati sul foglio sarà sufficiente, si potrà chiudere il limite dello strato a occhio.  
Questa tecnica che si basa su misurazioni lungo allineamenti paralleli e ortogonali viene definita rilievo per ascisse e ordinate. Trova una sistematica applicazione nell’esecuzione delle sezioni e dei prospetti e, per quanto riguarda le planimetrie, nel sistema della quadrettatura (fig. 27b). Quest’ultimo, che viene adottato in alcuni casi per la documentazione dei saggi di scavo, prevede la realizzazione di un reticolo di cordini paralleli e ortogonali, legati a dei picchetti allineati lungo i margini, i quali suddividono l’area in quadrati di uguali dimensioni. I picchetti che definiscono la griglia vanno posizionati con trilaterazioni o con la stazione totale (v. Cap. 4, fig 42). Poi si tendono i cordini tra picchetti opposti situati sullo stesso asse. La griglia viene riportata in scala sul foglio da disegno, sotto al quale viene inserito un millimetrato. I punti a terra che definiscono il contorno dello strato o dei reperti vengono rilevati prendendo con il metro le distanze dai due cordini più vicini, fra loro ortogonali, e vengono riportati in pianta sfruttando il reticolo della carta millimetrata che evita l’uso delle squadre. I punti che capitano sull’asse dei cordini possono essere misurati direttamente dal picchetto vicino. I cordini stanno generalmente a una certa altezza da terra per cui per prendere le distanze ci si aiuta con il filo a piombo. Il sistema tuttavia non è molto funzionale perché intralcia i movimenti, soprattutto quando si comincia a scendere in profondità e i cordini vengono a trovarsi a più di un metro dal piano di camminamento. E’ più pratico, ogni volta che si raggiunge un nuovo livello, trilaterare dai picchetti esterni un gruppo di picchetti provvisori messi in mezzo al saggio, come spiegato nel paragrafo precedente, e posizionati nel modo più utile per il rilievo di quel particolare contesto. 
Un altro sistema è quello di posizionare su un piano, tramite trilaterazioni, quattro punti i quali definiscono due allineamenti pressappoco paralleli (AB e CD) ai lati di un contesto piuttosto complicato da rilevare, ad esempio la copertura di tegole di una tomba a fossa (fig. 28a). Si tendono due metri tra le due coppie di chiodi e si utilizza un terzo metro per prendere delle misure trasversali che consentono di raggiungere tutti gli spigoli dei vari elementi. In questo caso non è necessario muoversi su assi ortogonali, perché gli allineamenti sono volta per volta definiti dagli incroci tra il metro trasversale e i due laterali. Ad esempio per posizionare uno spigolo di una tegola (G) si posizionerà il metro trasversale (EF) accanto a questo, collocando lo zero sopra uno dei due metri laterali (AB) e incrociando l’altro metro (CD) dalla parte opposta. Si disegnano sul foglio i due allineamenti AB e CD, si riportano le misure AE e CF corrispondenti agli incroci con il metro trasversale, si collegano E ed F e su questa linea si riporta la distanza EG. 
Nel rilievo delle pavimentazioni composte da numerosi elementi (lastre rettangolari, bipedali, mosaici geometrici) partendo da alcuni allineamenti identificati da coppie di punti già posizionati, applicando i vari metodi di misurazione sopra descritti, si possono facilmente ricavare tutti gli altri contorni. Il sistema migliore per prendere le misure lo si trova sempre in base all’esperienza e al ragionamento logico. 
In generale nel rilievo vanno misurati tutti i punti che definiscono il contorno originario dei singoli elementi architettonici i quali dovranno coincidere con i due estremi di un profilo rettilineo. Nella maggior parte dei manufatti antichi gli angoli sono spezzati o smussati. I punti andranno pertanto collocati il più possibile nei pressi e lo smusso dell’angolo sarà disegnato a mano libera. 
La caratterizzazione archeologica, i profili irregolari degli strati di terra o di strutture deteriorate possono essere disegnati in parte a occhio, appoggiandosi a dei punti rilevati di tanto in tanto e tenendo conto delle modalità della rappresentazione grafica di cui si è parlato nel primo capitolo. 
Mentre si prendono le misure conviene trascriverne i valori su un foglio di carta e dopo riportarle in pianta. Nella fase in cui si deve completare il disegno a occhio è necessario osservare gli oggetti da un punto di vista zenitale, quindi converrà posizionarsi con il tavolino subito accanto (meglio sulla destra). Sistemare il disegno su una tavoletta di compensato leggera da poter tenere in mano rende questa fase del lavoro molto più agile. 
 
4. Le quote altimetriche 
 
Le piante archeologiche vanno corredate da una serie di quote, indicate con un punto o un triangolino vicino il quale è riportato il relativo valore, le quali facciano comprendere i dislivelli (v. Cap. 1, fig. 12). Nel caso di una crepidine ad esempio si quoteranno i vari scalini e la pavimentazione sottostante in un punto vicino al primo gradino. Su un pavimento in pendenza si apporrà una quota sul punto più elevato e un’altra su quello più basso.  
La soluzione ideale è disporre di una rete di punti rilevati con la stazione totale i quali sono stati stampati in scala su una tavola, ciascuno identificabile da una piccola croce accanto alla quale sono indicati il relativo numero di serie (codice) e la quota altimetrica (v. Cap. 4, fig. 39). Se la maglia è abbastanza densa, appoggiandosi ai punti topografici si possono ricavare con facilità le quote di vari elementi situati nell’intorno utilizzando una semplice livella da cantiere (fig. 28b n. 3). Si appoggia uno spigolo della livella sul punto già quotato, la si mette in bolla, la si orienta in direzione del punto da determinare e si cala un metro in verticale per prendere la differenza. Se i punti stanno a una distanza maggiore della lunghezza della livella si dovranno fare due o più passaggi. 
Se non è stato effettuato il rilevo indiretto e se l’area da rilevare è ampia, l’unico sistema funzionale è quello di impiegare un livello ottico, strumento economico e di facile uso di cui una volta erano dotati tutti gli scavi archeologici. E’ costituito da un cannocchiale che viene fissato su un treppiede (o cavalletto) e poi messo in bolla ruotando tre viti calanti. Il cannocchiale può girare in qualunque direzione restando sempre perfettamente sull’orizzonte. Le quote vengono prese per differenza, posizionando lo zero di un’asta verticale graduata (stadia) sul punto da determinare e leggendo nel reticolo del cannocchiale il valore metrico che coincide con l’orizzonte (fig. 28b n. 2).  
Si parte per solito appuntando la stadia su una quota base dello scavo, anche locale, identificata da un chiodo o un picchetto, e da quella si ricava la quota dell’orizzonte del livello ottico; si posiziona quindi volta per volta la stadia sui punti da quotare e si annotano le varie letture. Il dislivello tra la quota base e il cannocchiale andrà sottratto nelle letture dei punti situati sotto il livello ottico, andrà aggiunto nelle letture dei punti situati in alto. Ad esempio: quota base m. 50,00 s.l.m; orizzonte del cannocchiale a + m. 1,50. Letture sui singoli punti: A = - 1,80; B = - 1,30; C = + 0,60. Quota del cannocchiale = 50,00 +1,50 = m.51,50. Quote dei singoli punti: A = 51,50 — 1,80 = m. 49,70; B = 51,50 — 1,30 = m. 50,20; C = m. 51,50 + 0,60 = 52,10.  
Le letture si effettuano più comodamente se i punti si trovano sotto il livello ottico, perchè vi si può appoggiare sopra lo zero della stadia. Per misurare i punti in alto, la stadia va messa sottosopra con lo zero accanto al punto. Se ciò risulta scomodo o manca lo spazio, la si accosta al muro con lo zero sul pavimento. In tal caso andrà calcolata, in aggiunta alle altre operazioni, la differenza tra il valore della tacca vicino il punto e il valore di quella sull’orizzonte del cannocchiale. In alternativa sui punti alti è comodo agganciare lo zero di un flessometro da srotolare verso il basso. Se i dislivelli sono contenuti si può anche utilizzare un metro a stecca rigido al posto della stadia.  
Conviene inoltre quotare sempre tutti i punti che serviranno per impostare gli allineamenti orizzontali di prospetti e sezioni, ad esempio le teste dei picchetti ai quali saranno legati i cordini. Le quote possono essere ricavate con lo stesso sistema anche per mezzo di un teodolite o una stazione totale, mettendo in bolla lo strumento e fissando il cannocchiale all’orizzonte: è utile in certi casi disporre di una serie di valori altimetrici da utilizzare seduta stante senza dover attendere l’elaborazione dei dati del rilievo indiretto. 
Se non si dispone né del livello ottico né della strumentazione topografica si dovrà risolvere con mezzi primordiali di vario tipo, alcuni abbastanza precisi ma scomodissimi (il tubo per innaffiare riempito d’acqua che funziona con il principio dei vasi comunicanti) altri alquanto inaffidabili, come il cordino messo in orizzontale con la livella da cantiere. Il male minore forse è quello di procurarsi una livella molto lunga e trasportarsi le quote da una parte all’altra dell’area con vari passaggi (fig. 28b n. 3): varrà in questo caso la teoria della parziale compensazione degli errori accidentali. Negli ultimi anni sono state messe in commercio delle livelle di alluminio molto lunghe (un metro e oltre), leggerissime e con un prezzo assai contenuto. 
 
5. Le sezioni e i prospetti 
 
Le trilaterazioni possono essere effettuate anche su una superficie verticale. Tuttavia per la esecuzione delle sezione e dei prospetti è molto più comodo e sicuro affidarsi al metodo del rilievo per ascisse e ordinate, per cui si opera in un sistema di assi cartesiani dove tutte le misure sono prese in orizzontale, a partire da un asse verticale di riferimento, e in verticale a partire da un asse orizzontale (quota base). L’esempio più elementare è il rilievo di una parete di un edificio moderno. Si assume come quota base il pavimento e come asse verticale di riferimento uno dei due angoli della parete. Ogni spigolo delle porte e delle finestre viene misurato in orizzontale dall’angolo e in verticale dal pavimento (fig. 29a n. 1). 
Nell’ambito del rilievo archeologico le cose purtroppo non sono altrettanto semplici, perché il piano di camminamento presenterà vari dislivelli mentre l’angolo della parete molto probabilmente sarà inclinato. Il problema viene risolto materializzando i due principali assi di riferimento. La quota base corrisponderà a un cordino teso in orizzontale tra due chiodi o picchetti, l’asse verticale coinciderà con un filo a piombo calato dall’alto (fig. 29a n. 2). Le misure di tutti i punti potranno essere prese quindi in verticale dal cordino della quota base e in orizzontale dal filo a piombo. 
Il cordino va messo perfettamente in orizzontale. Conviene avere dei punti già quotati presso gli estremi in modo da riuscire, con addizioni e sottrazioni, a fissare le due cime allo stesso livello. In mancanza si lega a un chiodo o a un picchetto una delle due estremità, si tiene in mano l’altro capo e si alza e abbassa il cordino ben teso finché non risulta allineato a una livella tenuta in mano da un secondo operatore piazzato al centro. Il sistema però è alquanto inaffidabile. E’ meglio forse riportarsi una quota da una parte all’altra effettuando una serie di passaggi con una livella lunga. Tra i due chiodi o picchetti a cui è legato il cordino viene fissata anche una fettuccia metrica che serve a prendere le distanze sull’asse delle x.  
Nel rilievo delle pareti si provvede a legare il filo a piombo a un chiodo infisso in un punto qualunque, il più alto possibile, e a calarlo fin quasi a terra, facendo attenzione che non tocchi altrimenti si affloscia (fig. 29a n. 2). Il filo a piombo incrocia la fettuccia metrica a una determinata distanza dall’origine che viene riportata sul foglio in modo da tracciare l’asse verticale. Accanto al filo a piombo si stende un flessometro con lo zero agganciato in prossimità del chiodo il quale indica le distanze sull’asse delle y (fig. 29a n. 4). I più pesanti flessometri da otto metri, appesi a un chiodo o allo spigolo di un mattone con il becco di metallo dello zero, si può riuscire a farli cadere bene in verticale. In tal caso sostituiranno direttamente il filo a piombo. Entrambi gli strumenti potranno essere più volte spostati durante il rilievo per avvicinarli a determinati settori della parete; la posizione dei nuovi assi verticali sarà ogni volta misurata lungo la fettuccia orizzontale.  
Quando il contesto da rilevare ha un’altezza limitata ed è quindi comodamente a portata di mano, non è necessario appendere il filo a piombo. Questo viene tenuto in mano dall’operatore e appoggiato volta per volta sui singoli punti, facendolo cadere accanto alla fettuccia metrica per determinare le distanze orizzontali (fig. 29a n. 3). Poi gli stessi punti vengono misurati in verticale dalla quota base con un metro a stecca o un flessometro. 
Conviene sempre impostare sezioni e prospetti a partire dalle planimetrie. Sulla pianta si segna con una linea a tratto-punto il percorso della sezione (fig. 29b n. 5). Il foglio su cui sarà disegnata la sezione-prospetto viene quindi sovrapposto alla pianta e orientato con quella, allineando la retta della quota-base alla linea a tratto-punto che ne indica il tracciato. Tutti gli elementi della pianta che faranno parte della sezione-prospetto vengono proiettati sul foglio con una serie di linee verticali che ne stabiliscono i limiti. Non sarà necessario riprendere le distanze orizzontali (anche se qualche verifica è sempre opportuna), occorrerà invece prendere tutte le misure verticali per chiudere i contorni.  
Le sezioni-prospetto archeologiche non sono di facile esecuzione. Si ha spesso a che fare con diversi piani di proiezione, oltre a quello secante (per esempio la sezione al centro dell’ambiente, una crepidine in primo piano, un bancone in secondo piano, la parete sullo sfondo). In alcuni casi sono inevitabili le proiezioni di elementi diversamente orientati i quali andranno rappresentati di sguincio. A livello operativo conviene affrontare un piano di proiezione alla volta a cominciare da quelli più vicini, quindi innanzitutto dal piano secante. Il cordino della quota base andrà pertanto materializzato volta per volta in corrispondenza dei vari piani verticali. Non necessariamente dovrà trovarsi sempre alla stessa quota ma dovranno essere conosciuti i dislivelli tra una quota base e l’altra, riportandoli sul disegno con una serie di linee di costruzione parallele.  
Il cordino della quota-base non è necessario quando si hanno a disposizione numerosi punti già quotati da riportare sulla sezione. Questi vengono proiettati dalla pianta, come gli altri elementi, con delle linee verticali. Su queste si posizionano i singoli punti, di cui si conoscono le quote altimetriche, con addizioni e sottrazioni dalla linea orizzontale della quota base (fig. 29b n. 6). Il rilievo indiretto consente in alternativa di stampare i punti topografici in scala direttamente su piani verticali corrispondenti ai prospetti (v. Cap. 5, fig. 40). Si potrà poi completare il rilievo dei dettagli effettuando delle misurazioni in orizzontale e in verticale a partire dai singoli punti.  
 
6. Gli errori da evitare 
 
Degli errori di misurazione si è parlato nel predente capitolo. Quelli accidentali tipici del rilievo diretto sono causati dallo scorretto posizionamento del filo a piombo e del metro sul punto. È un errore accidentale di segno sempre positivo quello delle fettucce metriche flesse o troppo inclinate usate per le trilaterazioni, le quali ci restituiscono misure più lunghe di quelle reali. Il cordino della quota base inclinato produce invece un errore sistematico sulle misure verticali della sezione (fig. 30a
Ci sono poi gli errori di disegno in cui cadono spesso i principianti. Uno dei più comuni è la imprecisione dell’apertura del compasso. Per evitarlo il compasso non va aperto appoggiandolo allo scalimetro; è meglio riportare la misura con precisione su una linea tracciata sul foglio, segnando due punti sui quali verrà appuntato lo strumento. Le mine poi vanno sempre ben temperate, a partire da quella del compasso. Le linee devono essere precise e nitide. Un rilievo non è un quadro impressionista. Ogni elemento è definito da una sola linea di contorno. Tante linee che si sovrappongono sono il frutto dell’incertezza del disegnatore. 
Vanno considerati infine gli errori di interpretazione dovuti a una superficiale considerazione del contesto da rilevare. Poniamo alcuni casi. Quando si disegna in pianta il profilo di un muro bisogna tenere presente che questo è definito da vari strati sovrapposti che danno luogo a una serie di allineamenti paralleli (fig. 30b). Procedendo dall’esterno possiamo ad esempio trovare lo strato superficiale dell’intonaco, poi uno strato di preparazione con il pietrisco, poi la cortina laterizia. Infine i tratti del muro in cui l’opera laterizia antica è mancante a volte sono restaurati con dei mattoni in sottosquadro, cioè lievemente arretrati rispetto a quelli originali per poterli distinguere. Questi elementi sono per solito variamente conservati tra una parte e l’altra del muro. Può darsi ad esempio che agli angoli opposti di una parete di cui dobbiamo effettuare una trilaterazione, troviamo in un caso l’intonaco, nell’altro la cortina laterizia a vista. Sarebbe un errore prendere la distanza una volta sulla cortina, una volta sull’intonaco e poi ricostruire il profilo del muro unendo i due punti con una linea, perché questa risulterebbe in diagonale rispetto al profilo reale del manufatto. Se nel primo caso misuriamo l’angolo sulla cortina nel secondo caso dovremmo avere cura di fare altrettanto, eventualmente aggiungendo lo spessore dell’intonaco alla distanza. La cosa migliore è disegnare i contorni delle pareti considerando sempre il filo del paramento; gli strati dell’intonaco, dove si conservano, possono essere aggiunti all’esterno tracciando delle linee parallele pari al loro spessore. Un eventuale sottosquadro del restauro sarà disegnato all’interno tracciando un’altra linea parallela. 
Si consideri inoltre che nelle piante sezionate la linea di sezione di regola taglia tutti gli elementi, anche secondari, che si trovano a quella quota (fig. 30c). Se sulla faccia di un muro sezionato a un determinato livello si trova una fila di buchi, la linea ne seguirà il contorno girando al loro interno. Allo stesso modo se la sezione segue il profilo di un paramento in opera laterizia e a metà parete, a quel livello, incontra un pezzo dell’intonaco che si è conservato, la linea girerà intorno all’intonaco, mentre la cortina laterizia resterà all’interno. Si potrà eventualmente indicare la prosecuzione della cortina laterizia dietro l’intonaco con una linea tratteggiata. Gli stessi principi si applicano ovviamente per i piani secanti verticali.  
Molti problemi sono causati dal fatto che i muri antichi sono quasi sempre inclinati a causa di dissesti di vario tipo avvenuti con il tempo. Più frequentemente i muri sono piegati verso l’esterno dell’edificio per effetto delle spinte delle volte. Queste pendenze andrebbero sempre verificate appoggiando il filo a piombo alle pareti e rappresentate in maniera adeguata (fig. 30d). In prospetto o in sezione il piede e la sommità di un muro inclinato vengono misurati in orizzontale dal filo a piombo e riportati sul disegno con una linea diagonale. In pianta il discorso è più complicato perché il contorno originario delle pareti corrisponde allo spiccato mentre le parti alte sono traslate, ma sono queste ultime purtroppo che vengono rappresentate sulla pianta dall’alto oppure su una pianta sezionata a una quota elevata rispetto al pavimento. Inoltre i muri di una stanza possono essere ciascuno inclinato a suo modo; una stessa parete può mostrare ad esempio un’accentuata pendenza in corrispondenza di uno dei due angoli ed essere quasi in appiombo dalla parte opposta. 
In questi casi la cosa migliore è partire dal profilo originario della parete corrispondente allo spiccato. Le trilaterazioni più correttamente andrebbero fatte a terra e se ciò non è possibile a causa di ostacoli di vario tipo, per cui il metro va inevitabilmente a poggiare su un punto alto del muro, la posizione dell’angolo in basso può essere ricavata aggiungendo alla misura il tratto che manca — o sottraendo quello in eccesso — aiutandosi con il filo a piombo. Si ricostruisce quindi sulla pianta il profilo a terra delle pareti con delle linee leggere. A partire da queste, aiutandosi con il piombo, si ritrova volta per volta il profilo delle parti alte. La rappresentazione di un muro inclinato in pianta vedrà in primo piano il contorno della parte superiore traslata. Se la parete pende verso l’esterno, il piede del muro sul lato interno sporge ed è visibile; sarà pertanto indicato con una linea continua. Il piede esterno resta invece coperto e va indicato con una linea tratteggiata. A queste proiezioni dei muri fuori piombo si vanno eventualmente ad aggiungere quelle degli intonaci che aderiscono alla cortina, di cui vediamo in pianta lo spessore di ogni strato e le relative proiezioni delle facce laterali inclinate. Per i principianti riuscire a rappresentare graficamente queste situazioni risulta assai difficile. Se i muri non sono troppo inclinati — diciamo entro i tre centimetri nella scala 1:20 — consiglierei, per non impazzire, una piccola forzatura: rilevare le pareti sopra il pavimento per riportarne il contorno originario e “far finta” che le parti in alto siano in appiombo. Questa soluzione ha peraltro il pregio di fornire una rappresentazione molto più chiara rispetto a un disegno che riporti una sequela di linee più o meno parallele di difficile interpretazione. Le pendenze potranno eventualmente essere rappresentate, in modo più semplice, sulle sezioni-prospetto.  
È da evitare infine la facile tentazione di riportarsi una quota da una parte all’altra di un muro in opera laterizia seguendo i filari dei mattoni. Il rilievo serve proprio a verificare l’orizzontalità della cortina e non può quindi presumerla! Molte volte i paramenti murari sono inclinati nel senso della lunghezza del muro a causa di un cedimento delle fondazioni. 
Il profilo di un arco è determinato nella maggior parte dei casi da tre soli punti: le due imposte e la chiave (cfr. App.2, fig.129). Tuttavia nell’architettura romana vi sono alcuni esempi di archi policentrici; inoltre numerose volte risultano lievemente ribassate a causa della deformazione della centina. Pertanto è opportuno rilevare sempre un numero maggiore di punti. Il distanziometro laser è utilissimo per il rilievo delle volte di copertura che stanno molto in alto rispetto al pavimento. Bisogna però fare attenzione che sia perfettamente verticale altrimenti i punti rilevati potrebbero trovarsi spostati di alcuni centimetri sull’asse delle x (fig.31; cfr. App. figg. 130, 131).  
 
7. Alcune tecniche di rilievo nelle scale grandi 
 
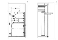
Le modanature architettoniche si rilevano secondo il metodo delle ascisse e delle ordinate (fig. 32; cfr. App.2, figg. 124-128). Per disegnarle in prospetto o in sezione si accosta alla parte più sporgente un filo a piombo o una livella messa in verticale oppure una grossa squadra di legno verificandone la verticalità con il filo a piombo; quindi si misurano in orizzontale con un metro rigido tutti i punti che definiscono la forma delle modanature. Gli stessi punti vengono misurati in verticale, con il metro e una livella, rispetto a una quota base che può coincidere con un bordo dell’oggetto se questo è orizzontale. Se l’alzato dell’edificio si conserva fino alla trabeazione conviene calare un piombo dall’alto — servirà ovviamente un ponteggio — fissandolo a un elemento sporgente, come la cornice, e rilevare l’ordine architettonico nel suo insieme. In questo caso è utile appendere un metro a fianco del filo a piombo. Le misure orizzontali saranno prese come sopra, dal filo alle varie sporgenze; quelle verticali saranno lette lungo il metro utilizzando una livella..  
Alcune tecniche sono tipiche della scala 1:1. Il metodo del rilievo a contatto si usa per documentare piccole porzioni di mosaici e di pitture parietali oppure campioni di paramenti murari; consiste nell’appoggiare un foglio di plastica trasparente (polietilene) sulla superficie da riprodurre, ricalcando con un pennarello indelebile il contorno dei vari elementi visibili. Converrà poi operare una riduzione di scala per la elaborazione grafica definitiva.  
Il frottage (dal francese frotter, strofinare) si usa invece per la rappresentazione di oggetti in rilievo, come monete, iscrizioni — compresi i bolli laterizi - , materiali con particolari tracce di lavorazione. Si appoggia un foglio di carta velina sulla superficie da riprodurre e si strofina con una matita dalla mina grassa oppure con un tampone imbevuto di grafite. 
Il profilografo o pettine è uno strumento che si usa per il rilievo della ceramica o delle piccole modanature, costituito da una base allungata in cui è inserita una fila di aghi fittamente accostati. Si avvicina l’oggetto al profilo da rilevare, facendo attenzione che sia correttamente orientato, e con una pressione delle dita si spostano gli aghi in modo da far aderire tutte le punte alla superficie. Lo strumento viene quindi appoggiato su un foglio e con la matita si ricalca il profilo definito dalle punte.
 
 
 
 
 
 
 
 
 
 
 
 
 
 
 
 
 
 
 
 
 
 
 
figura 23a 
 
 
 
 
 
 
 
 
 
 
 
 
 
 
 
 
 
 
 
 
 
 
 
 
 
 
 
 
 
 
 
 
 
 
 
figura 23b 
 
 
figura 23c 
 
 
 
 
 
 
 
 
 
 
 
 
 
 
 
 
 
 
 
 
 
 
 
 
 
 
 
 
 
 
 
 
 
 
 
 
 
 
 
 
 
 
 
 
 
 
 
 
 
 
 
 
 
 
 
 
figura 24a 
 
 
figura 24b 
 
 
 
 
 
 
 
figura 24c 
 
 
 
 
 
 
figura 24d 
 
 
 
 
 
 
 
 
 
 
 
 
 
 
 
 
 
 
 
 
 
 
 
 
figura 25a 
 
 
 
 
 
 
 
 
 
 
 
 
figura 25b 
 
 
 
 
 
 
 
 
 
 
 
 
 
 
 
 
 
 
 
 
 
 
 
 
figura 25c 
 
 
 
 
figura 26a 
 
 
 
 
figura 26b 
 
 
 
 
 
 
 
 
 
 
 
 
 
 
 
 
 
 
 
 
 
 
 
 
 
 
 
 
 
 
 
 
 
 
 
 
 
 
 
 
 
 
 
 
 
 
 
 
 
 
 
 
 
 
 
 
fiigura 27a 
 
 
 
 
 
 
 
 
 
 
 
 
 
 
 
 
 
figura 27b 
 
 
 
 
 
 
 
 
 
 
 
 
 
 
 
 
 
 
 
 
figura 28a 
 
 
 
 
 
 
 
 
 
 
 
 
 
 
 
 
 
 
 
 
 
 
 
 
 
 
 
 
 
 
 
 
 
 
 
 
 
 
 
 
 
 
 
 
 
 
 
 
 
figura 28b 
 
 
 
 
 
 
 
 
 
 
 
 
 
 
 
 
 
 
 
 
 
 
 
 
 
 
 
 
 
 
 
 
 
 
 
 
 
 
 
 
 
 
 
 
 
 
 
 
 
 
 
 
 
 
 
 
 
 
 
 
 
 
 
 
 
 
 
 
 
figura 29a 
 
 
 
 
 
 
 
 
 
 
 
 
 
 
 
 
 
 
 
 
 
 
 
 
 
 
 
 
 
 
 
 
 
 
 
 
 
 
 
 
 
figura 29b 
 
 
 
 
 
 
 
 
 
 
 
 
 
 
 
 
 
 
 
 
 
 
 
 
 
 
 
 
 
 
figura 30a 
 
 
 
 
 
 
 
 
 
 
 
 
figura 30b 
 
 
 
 
 
 
 
 
 
 
 
 
 
 
 
 
 
 
 
figura 30c 
 
 
 
 
 
 
 
 
 
figura 30d 
 
 
 
 
 
 
 
 
 
 
 
 
 
 
 
 
 
 
 
 
 
 
 
 
 
 
 
 
 
 
 
 
 
 
 
 
 
 
figura 31 
 
 
 
 
 
 
 
figura 32 
 
 
 
 
 
 
 
 
 
 
 
 
 
 
 
 
 
 
 
 
 
 
 
 
 
 precedente
 
inizio pagina
successiva