001 indice analitico pagina a iper://home.aeh|1 acquisto libro iper://home.aeh|0
 
 
 
 
 
 
 
 
 
 
 
 
 
 
 
 
 
 
 
 
 
 
 
 
 
 
Capitolo X 
Il CAD e il disegno 2d
 
 
 
 
1. L’interfaccia del CAD 
 
L’interfaccia dei programmi CAD, come quella di molti altri software, presenta uno spazio rettangolare al centro - l’area di disegno - intorno il quale si dispongono una serie di barre mobili (fig. 69). In alto si trova la solita fascia orizzontale dei menù a tendina che comprende la quasi totalità dei comandi, suddivisi per temi. La parte inferiore è occupata da una finestra orizzontale — riga di comando - che serve a immettere le istruzioni. Ci sono pertanto tre modi alternativi di dare un comando: usare i menù a tendina; fare clic sulle icone; digitarne il nome nella riga in basso. Quest’ultima consente un dialogo dinamico tra il programma e l’utente per cui, una volta immesso il nome del comando, il programma pone alcune richieste da confermare oppure che comportano l’immissione di dati. 
Vengono visualizzate di default, cioè in maniera predefinita, le barre delle icone più utilizzate. Altre barre possono essere posizionate sullo schermo accedendo a un apposito indice che si apre per solito attraverso il menù Visualizza/Barre degli strumenti oppure con un clic del tasto destro del mouse sulle barre già aperte. Quelle più importanti sono: 
- La barra degli strumenti standard che comprende una serie di comandi di uso universale come Nuovo, Apri, Salva, Stampa, Taglia, Copia e Incolla, oltre in genere alle icone dei comandi di visualizzazione, come lo Zoom e il Pan.  
- La barra dei layer con le relative finestre di gestione. Come nei software di grafica raster, nei CAD possono essere creati vari livelli a cui assegnare i diversi oggetti del disegno.  
- La barra degli strumenti per il disegno comprende i comandi per creare una serie di primitive geometriche, l’editore del testo scritto, il comando per realizzare campiture e tratteggi. 
- La barra degli strumenti di modifica, o di editing, contiene i comandi che consentono di trasformare uno o più oggetti dopo averli selezionati (Copia, Specchia, Sposta, Scala, Spezza ecc.). Per selezionare le entità da modificare è sufficiente toccarle con il puntatore premendo il tasto sinistro del mouse oppure comprenderle in un rettangolo definito da due clic sullo schermo.  
- La barra di stato, situata nella parte inferiore, comprende un gruppo di pulsanti (aiuti per il disegno) che danno modo di attivare e disattivare alcuni comandi frequentemente utilizzati mentre si lavora. In alternativa si possono usare i pulsanti funzione della tastiera del computer. Indichiamo i più comuni: l’Orto aiuta a tracciare le linee ortogonali forzando il movimento del puntatore nelle direzioni dei due assi cartesiani; lo Snap agli oggetti del disegno (Esnap in ProgeCAD, Osnap in AutoCAD) è una calamita la quale consente di attaccare con precisione la linea che si sta disegnando ad altre entità già presenti nel grafico; la Griglia, di cui l’utente può impostare il modulo, viene visualizzata oppure nascosta pigiando l’apposito tasto; lo Snap è una calamita che connette le linee in fase di tracciamento agli incroci della griglia. Si possono impostare in genere le proprietà di questi comandi facendo clic con il tasto destro del mouse sul pulsante relativo. 
 
2. Lo spazio cartesiano 
 
L’area di disegno di un file CAD corrisponde a uno spazio cartesiano. Nel disegno 2d vengono visualizzati solamente gli assi delle x e delle y, indicati da un’icona con due frecce generalmente situata in basso a sinistra nell’area di disegno (fig. 70 n. 1); la direzione della z è normale al punto di vista dell’utente. Nella cartografia la y è identificata con il nord. 
I valori delle coordinate sono espressi da unità e decimali, separati da un punto; la virgola suddivide le coordinate della x da quelle della y. Le coordinate dei punti che si trovano a ovest e a sud dell’origine sono precedute dal segno meno. 
Nel rilievo archeologico e architettonico si attribuisce solitamente all’unità il valore di un metro. Per comodità si disegna sempre in scala 1:1. Una parete lunga nella realtà cm. 277 misurerà in CAD (m.) 2.77 Pertanto quando si importano delle immagini raster da georeferenziare e da vettorializzare queste vanno subito portate in scala 1:1 rispetto alle dimensioni reali degli oggetti che vi sono rappresentati. Nella barra di stato, in basso a sinistra, sono visualizzati i valori delle tre coordinate i quali corrispondono alla posizione in cui si trova in quel momento il puntatore a croce, mosso dal mouse, nell’area del disegno (fig. 70 n. 1).  
Lo spazio cartesiano di un file CAD corrisponde a un sistema di coordinate assolute (altrimenti definito globale) i cui valori vengono identificati dall’utente con quelli del sistema di proiezione geodetico adottato per il rilievo e per la gestione della cartografia (Gauss-Boaga, UTM, WGS84, ecc.). In alternativa può essere fatto coincidere con un sistema di riferimento locale, orientato ad esempio con l’edificio da rappresentare; in tal caso l’origine si colloca generalmente nell’angolo in basso a sinistra del disegno. In ogni modo le coordinate dei punti misurati con il rilievo indiretto, siano esse geodetiche o locali, coincideranno automaticamente con quelle del file CAD in cui i punti vengono riversati.  
Mentre si lavora si possono impostare per comodità all’interno del disegno dei piani cartesiani provvisori diversamente orientati. Questa funzione che è di grande aiuto soprattutto per la modellazione tridimensionale, può in taluni casi facilitare anche il disegno tecnico 2d. Se ad esempio si devono tracciare una serie di linee ortogonali rispetto a un’altra linea che è disposta in diagonale rispetto agli assi cartesiani, conviene impostare un sistema locale orientato con quest’ultima; in questo modo le altre linee potranno essere comodamente tracciate in senso normale a quella utilizzando la funzione Orto. In qualunque momento sarà possibile ritornare al sistema globale del file (fig. 70 n. 3).  
Queste procedure di modifica delle coordinate del disegno sono introdotte digitando il comando UCS (User Coordinate System), oppure utilizzando la barra degli UCS con le relative icone (fig. 70 n. 2). Una serie di comandi consente di agganciare l’origine e orientare gli assi cartesiani rispetto a determinati oggetti del disegno appositamente selezionati, oppure di ruotare ciascuno dei tre assi cartesiani in base a un dato angolo. Per tornare al sistema di coordinate globale del file si preme una icona che rappresenta un mappamondo. 
 
3. Disegnare per mezzo di valori numerici 
 
Ci sono vari modi per disegnare una linea in CAD. Dopo aver premuto l’icona del comando Linea si può fare clic con il mouse liberamente in vari punti dello schermo tracciando in successione una serie di segmenti e terminare digitando Invio. Premendo di nuovo l’icona della Linea, oppure digitando una seconda volta Invio si potrà ricominciare a disegnare in qualunque altra parte dello schermo. Questo è il sistema che si utilizza normalmente per ricalcare un’immagine inserita come sfondo (fig. 71a).  
In alternativa si possono inserire nella riga di comando dei valori numerici. Per posizionare un punto è sufficiente digitare le sue coordinate spaziali e premere Invio. Per disegnare una linea si danno le coordinate del punto iniziale, seguite da Invio, quelle del punto finale e nuovamente Invio. Per figure geometriche più complesse (poligoni, polilinea, ellissi, ecc) si digitano le coordinate dei punti che definiscono la geometria dell’oggetto scegliendo tra le opzioni proposte nella riga di comando.  
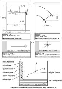
Questo sistema è utile per restituire graficamente una serie di misure prese con i metodi del rilievo diretto e appuntate su un foglio di carta. Nell’esempio riportato nella fig. 71b (n. 1) l’origine è stata fissata nell’angolo inferiore sinistro della parete. Per posizionare il punto 3, corrispondente allo spigolo in alto a destra della porta, si esegue il comando Punto, si digitano le coordinate del punto (2.47, 2.37) e si dà l’Invio. Per tracciare la linea sottostante, che corrisponde alla spalla della porta, si attiva il comando Linea, si introducono le coordinate di uno dei due estremi (2.47, 2.37) seguite da Invio, poi le coordinate dell’altra estremità (2.47, 0), e si conclude con un altro Invio. 
Il metodo più utilizzato però è quello di posizionare il punto d’inizio della linea facendo clic con il mouse in una determinata parte dello schermo — di solito agganciandola ad un oggetto già disegnato — e proseguire digitando le coordinate dell’altra estremità . Quest’ultime vengono definite non in valori assoluti, come nel caso precedente, ma in valori relativi rispetto al punto d’inizio della linea stessa. In tal caso devono essere introdotte dal segno @. Nell’esempio della fig. 71b (n. 2) per disegnare il lato destro della piattabanda si attiva il comando Linea e si fa clic con il mouse sull’estremità inferiore dell’elemento (punto 4) attaccandosi allo spigolo già disegnato della porta; quindi s’introducono nella riga di comando le coordinate relative @ 0.50, 0.38 e Invio: verrà tracciata una diagonale fino al punto 5, in alto a destra. 
Un sistema più rapido, una volta fissato il punto d’inizio, consiste nell’orientare la linea verso la direzione voluta (senza fare clic un’altra volta nello schermo) e digitare solamente il valore della lunghezza seguito da Invio. Nell’esempio della fig. 71b (n. 3) viene tracciata in questo modo una linea orizzontale lunga m. 2,54 verso destra. Per forzare il movimento del puntatore in senso parallelo all’asse delle x è stata attivata la funzione Orto (tasto F8). 
Si possono dare anche le coordinate polari, ossia quelle relative all’angolo del vettore, introducendole con il segno < subito dopo la distanza. Per esempio, se dopo aver indicato con un clic il punto d’inizio della linea digitiamo sulla barra del comando @2.54 < 45 ne risulterà un segmento lungo m. 2,54 e orientato di 45 gradi rispetto all’asse delle x (fig. 71b n. 4) 
Nel disegno tecnico i vari elementi devono congiungersi in maniera assolutamente precisa. Per accostare le linee le une alle altre è obbligatorio usare lo Snap agli oggetti, calamita che consente di collegarsi a determinati punti geometrici delle entità già disegnate, ad esempio alla fine o al centro di una linea, su un’intersezione, nel centro di un cerchio e così via. Le varie modalità di aggancio vengono impostate premendo le icone di un’apposita barra (fig. 71b n. 5) oppure mettendo i segni di spunta in una finestra che viene visualizzata facendo clic con il tasto destro del mouse sul pulsante Osnap (o Esnap) della barra di stato. Se non si usa l’Osnap le linee del disegno vengono considerate non collegate dal programma, anche se vicinissime. Una forma non chiusa non può essere campita con i tratteggi e non può essere sviluppata come solido 3d. La calamita in altri momenti può dare fastidio mentre si disegna perché forza il cursore in direzione di determinati punti che invece vogliamo ignorare. Lavorando in CAD ci si abitua pertanto ad avere costantemente sotto mano il pulsante F3 della tastiera per attivare e disattivare ripetute volte lo snap agli oggetti. 
 
4. Tipi di linee 
 
La barra degli strumenti di disegno comprende una fila di icone che permettono di disegnare punti, linee e figure geometriche piane di vario tipo (fig. 72 n. 1). Quando si attiva un comando la barra in basso propone una serie di opzioni per costruire la figura voluta. Quella compresa tra due parentesi acute è di default e la si accetta premendo il tasto Invio. Se si vuole seguire un procedimento diverso bisogna digitare la lettera evidenziata in maiuscolo (di solito un’iniziale) che rimanda a un’altra istruzione e poi fare Invio. L’Invio viene dato sempre per proseguire il dialogo con la riga di comando, una volta immessi i dati, oppure per concludere una procedura. Qualunque figura può essere disegnata digitando valori numerici o a mano libera ricalcando un’immagine messa sullo sfondo. Esaminiamo qui di seguito alcuni oggetti bidimensionali tipici dei CAD. 
Il cerchio viene disegnato di default indicando la posizione del centro e il valore del raggio. Questa formulazione è la più veloce per riportare in CAD le trilaterazioni effettuate con il rilievo diretto (fig. 72 n. 4). Per trovare infatti la posizione di un punto C misurato dai punti noti A e B, si aziona il comando cerchio, si indica la posizione del centro con un clic sul punto A e poi si introduce la misura del raggio pari alla distanza AC; si ripete la stessa operazione per la misurazione BC. I cerchi si intersecano due volte; la posizione di C è comunque evidente; si colloca pertanto il punto C su una delle intersezioni e si cancellano i cerchi di costruzione. 
La polilinea è costituita da una serie di segmenti concatenati (fig. 72 n. 2); quando si fa clic con il mouse su un punto qualunque della figura le varie linee che la compongono vengono selezionate tutte insieme. Può comprendere anche dei tratti curvilinei: mentre si disegna si può selezionare sulla barra del comando l’opzione che consente di tracciare un arco (A o AR) e quindi impostare diverse modalità di costruzione della curva; digitando LI(nea) si prosegue tracciando nuovamente segmenti rettilinei. Immettendo CH(iudi) il punto finale si ricongiunge a quello iniziale; in alternativa la figura si presenterà come una spezzata aperta. E’ importante utilizzare la polilinea per il contorno di ogni oggetto ben definito rispetto agli altri, (ad esempio il perimetro di un’unità stratigrafica) in modo da poterlo selezionare, trasportare, eventualmente modificare con un solo clic del mouse. Nei GIS le polilinee chiuse sono definite poligoni e vengono utilizzate per tracciare i limiti dei territori: a ogni poligono può essere associata una tabella di attributi relativi a quell’area. Nel CAD solo le figure geometriche chiuse — cerchi, poligoni, spline e polilinee chiuse — possono essere estruse, cioè trasformate in solidi 3d.  
I segmenti tracciati in sequenza con il comando Linea restano invece entità a sé stanti e sono selezionabili separatamente. 
La spline è una linea curva continua il cui percorso si adatta ai vari clic del mouse sullo schermo, utilissima per disegnare i contorni dei vasi o i profili irregolari di elementi architettonici usurati (fig. 72 n. 3). Se chiusa può essere trasformata in un solido 3d — tramite estrusione — come la polilinea. 
Il punto è un’entità grafica che identifica comunemente i punti del rilievo. Per individuarlo meglio conviene visualizzarlo in forma di croce. Si impostano la forma e le dimensioni attraverso il menù Formato/ Stile punto. 
Facendo clic con il mouse sugli oggetti del disegno per selezionarli, questi si mostrano con delle linee a tratteggio associate a dei quadratini colorati denominati grip. Essi corrispondono ai punti, memorizzati dal programma, che definiscono la geometria delle figure (v. Cap. 9, fig. 68). Agganciando i grip con il mouse e trascinandoli si può modificare la forma degli oggetti. Questa procedura è comoda in particolare per aggiustare le spline, per esempio nel caso in cui queste definiscono il contorno di un vaso che è stato ricalcato con qualche imprecisione (fig. 72 n. 3). 
La maggior parte dei CAD dispone di un comando che consente di eseguire delle campiture, definite tratteggi, scegliendo tra vari campioni contenuti in una libreria. La funzione è utile ad esempio per disegnare le campiture a linee oblique all’interno della sezione, oppure per creare simbologie astratte adatte per le piante di fase, ricostruttive e a piccola scala (v. Cap. 1, fig. 16). Per determinare la densità delle linee bisogna impostare un fattore di scala nella finestra del comando. Si possono anche associare ai reticoli di linee dei colori piatti da mettere sullo sfondo. I tratteggi riempiono aree circondate da linee di contorno chiuse che vanno appositamente selezionate. Se questi contorni non devono risultare visibili, conviene disegnare il profilo dell’area da campire con una polilinea di costruzione associata a un apposito layer che sarà in seguito disattivato. 
Un’altra icona sempre presente nella barra degli strumenti di disegno è l’editore di testo con il quale si aggiungono numeri e scritte al grafico scegliendo le dimensioni e lo stile del carattere. 
I CAD generici più evoluti possiedono uno strumento di disegno a mano libera (schizzo, in inglese sketch) il quale è fondamentale per la caratterizzazione archeologica. Il relativo pulsante non è presente di default sulla barra degli strumenti di disegno (nell’ultima versione di Intellicad è stato però inserito nel menù a tendina); occorre crearlo attraverso la finestra di gestione delle barre degli strumenti; altrimenti tocca scrivere ogni volta per esteso il nome del comando nell’apposita riga, cosa che non è molto comoda. Una volta attivato il comando, si fa clic sullo schermo sul punto d’inizio della linea e si trascina il mouse liberamente con un movimento continuo, premendo un tasto solamente per terminare. Utilizzando la tavoletta grafica si riesce a disegnare con grande precisione e a una velocità addirittura maggiore che con il rapidograph. 
Ciò che viene tracciato è una sequenza di linee vettoriali molto piccole. Eseguendo uno zoom si vedrà una linea spezzata composta da tantissimi segmenti selezionabili separatamente (fig. 72 n. 5). La lunghezza dei singoli segmenti va impostata sulla riga di comando prima di tracciare la linea. Bisogna cercare di assegnare un valore che non li renda visibili a occhio nudo in fase di stampa, lasciando l’impressione di un disegno a mano libera. Dovrebbero quindi risultare non più lunghi di un decimo di millimetro sulla tavola stampata. Considerando che in CAD si lavora in scala reale, andrebbe impostata per esempio una lunghezza dei singoli segmenti pari a m. 0.005 (mm. 5) se il grafico sarà stampato in scala 1:50. 
Non bisogna farli però esageratamente e inutilmente corti. Va considerato che il programma tiene in memoria i due punti estremi di ciascun segmento. Un disegno molto caratterizzato ne può comprendere diverse migliaia rendendo il file molto pesante. Dimezzare la lunghezza dei singoli segmenti significa raddoppiarne il numero con conseguente incremento della memoria occupata sul disco. 
 
5. Gli strumenti di modifica 
 
Nella fig. 73 è mostrata l’immagine della barra degli strumenti di modifica (o editing) con le relative icone, che sono comuni a tutti i CAD, di cui vengono descritte le funzioni. Anche quando si utilizzano questi strumenti è necessario dialogare con la riga di comando la quale propone varie soluzioni alternative. Per prima cosa chiede sempre di selezionare gli oggetti che s’intende modificare. 
Le trasformazioni si eseguono manualmente, muovendo il mouse sullo schermo, oppure immettendo valori numerici. Nel secondo caso la riga di comando, relativamente ad alcune procedure come ad esempio Sposta e Copia, pone in sequenza due interrogativi: il primo sono le coordinate del punto base (che può essere identificato con un punto di riferimento qualunque), il secondo sono le coordinate del punto di destinazione (che determina l’entità dello spostamento a partire dal primo). C’è dunque un rapporto relativo tra l’uno e l’altro che per comodità si risolve immettendo nel primo caso il valore 0,0; nel secondo la quantità totale dello spostamento. 
Nell’esempio alla fig. 74a è stata selezionata la sezione del cunicolo per spostarla nell’area di disegno. Il programma chiede per prima cosa di digitare le coordinate del punto base dello spostamento cui si risponde immettendo i valori 0,0; dopo l’Invio domanda le coordinate relative del punto di destinazione. Nel caso specifico sono state introdotti i valori 3.5, 4.6. Vuole dire che la sezione sarà spostata di m. 3,50 verso destra e m. 4,60 verso l’alto rispetto alla sua posizione attuale. In alternativa si poteva rispondere alle stesse richieste effettuando uno spostamento a occhio con due clic del mouse sullo schermo. 
Nell’esempio alla fig. 74b è stata importata un’immagine raster relativa alla sezione-prospetto di una parete e la si vuole portare in scala 1:1. Dopo averla selezionata, la riga di comando chiede di digitare la lunghezza di un qualunque elemento dell’oggetto (lunghezza di riferimento in Autocad, base scala in ProgeCAD); dopo l’Invio vuole la nuova lunghezza (o nuova scala) da attribuire allo stesso elemento. Conoscendo le dimensioni dell’intera parete, si introduce la misura fuori scala che essa presenta attualmente nel disegno (m. 6.8535) e poi la sua lunghezza reale (m. 9,80). Tutta l’immagine si scalerà in proporzione. 
 
6. I layer 
 
Una finestra del programma, che si apre premendo un pulsante della barra dei layer che rappresenta una pila di fogli sovrapposti, consente di creare e impostare i vari livelli (fig. 75 n. 1); gli stessi possono essere visualizzati e selezionati, mentre si lavora, tramite una finestra di controllo più piccola situata subito a destra (fig. 75 n. 2); gli oggetti disegnati vengono associati automaticamente al layer attivo in quel momento e che è evidenziato sulla barra. Nella finestra di gestione a ogni layer viene attribuito un nome, un colore con cui viene visualizzato sullo schermo, un tipo di linea (continua, tratteggiata, ecc), lo spessore del pennino in fase di stampa. Un’icona con la lampadina consente di renderli visibili o nasconderli. Attivando l’icona con il lucchetto il layer relativo viene bloccato: significa che le linee ad esso associate non potranno essere selezionate. E’ una funzione utile nel caso di disegni molto complessi quando si intende modificare uno o più oggetti, risparmiando però quelli adiacenti o sovrapposti.  
I livelli di un disegno vanno pianificati in maniera razionale, dividendoli per temi e tenendo anche conto degli spessori di stampa. Nella documentazione archeologica si possono prevedere layer dedicati alle principali linee di contorno (limiti US, limiti saggio), alla caratterizzazione dei materiali (tufi, cocciopesto, laterizi, travertino, ecc.), ai simboli grafici (numeri US, quote, coordinate, cornice) (fig. 76a). Nelle piante e nei modelli ricostruttivi essi rimanderanno anche alle varie fasi storiche. Nelle piante tematiche saranno organizzati sulla base dei tipi di manufatti rappresentati (muri, sepolture, pozzi, ecc.) (v. Cap. 11, fig. 85). 
I livelli possono essere organizzati tenendo anche conto che dentro le relative finestre essi si dispongono automaticamente in ordine alfabetico. L’uso di una stessa iniziale davanti ai nomi dei layer appartenenti a un determinato gruppo che presenta caratteristiche omogenee ha il pregio di evidenziarli rispetto agli altri, in modo da poterli selezionare tutti in una volta con più facilità. L’espediente si presta ad esempio a distinguere, negli elaborati totalmente vettorializzati, le linee principali del disegno da quelle secondarie della caratterizzazione archeologica. In tal modo disattivando i layer di quest’ultime si otterrà una visione di sintesi del contesto rappresentato e si potranno selezionare gli oggetti rimasti per copiarli in planimetrie a piccola scala con un diverso contenuto informativo. L’immediata riconoscibilità di determinati gruppi di layer risulta utile anche nell’interscambio dei dati in quanto consente di distinguere gli oggetti prodotti da determinati operatori rispetto agli altri. Alcuni CAD sono comunque dotati di appositi filtri che permettono di creare raggruppamenti di layer identificabili con un nome comune i quali vengono richiamati in un’apposita finestra di gestione. 
 
7. La caratterizzazione archeologica in CAD 
 
L’impiego delle spline e delle linee a mano libera è fondamentale nella vettorializzazione manuale di rilievi archeologici molto caratterizzati, i quali vengono importati come immagini raster visualizzate sullo sfondo e ricalcati muovendo il mouse o, meglio ancora, la matita digitale della tavoletta grafica (fig. 76a, fig. 76b). 
La sketch è particolarmente indicata per disegnare con grande rapidità la fitta trama di linee irregolari che danno idea delle asperità delle superfici — l’usura delle creste murarie o i dislivelli del banco tufaceo - i contorni dei blocchetti di tufo, le fratture del travertino, e così via. La spline si adatta altrettanto bene al profilo irregolare dei vari elementi ed è senz’altro da preferire per tracciare il contorno delle US (strati, tagli, strutture murarie) in quanto può circoscrivere un’area ed è selezionabile tutta insieme, comportandosi come una polilinea. Profili più rettilinei e regolari, come quelli delle murature in opera laterizia, conviene disegnarli con la polilinea. I segmenti rettilinei di questa si adattano inoltre a rappresentare i i frammenti di mattoni, compresi quelli utilizzati come scapoli dell’opera cementizia, differenziandoli in maniera evidente dai blocchetti di tufo. 
Anche i punti possono essere disegnati velocemente in gran numero nel CAD. Vale la pena pertanto utilizzarli sia per effetti di ombreggiatura (fig. 76b n. 2) sia per caratterizzare determinati materiali come malte, intonaci, conglomerati anche in associazione ad altri simboli (fig. 76b nn. 1, 3). I punti non sempre vengono stampati con lo spessore voluto. Vanno fatte varie prove di stampa e per questo è necessario predisporre per tali elementi un layer apposito (da non confondersi con quello dei punti della topografia). Una finestra del programma (menù Formato/stile di punto) consente di impostare la forma con cui i punti vengono sia stampati sia visualizzati nello schermo. Per la caratterizzazione archeologica vanno bene sia il punto semplice, sia la forma a trattino verticale — cui va assegnato un valore di lunghezza — che richiama le ombreggiature a tratteggi effettuate col rapidograph. 
I comandi di modifica come Offset, Copia e Serie permettono di impostare su una base geometrica il disegno dei paramenti murari. Nella fig. 77b (n. 1) i ricorsi dell’opera laterizia sono stati creati con il comando Serie replicando una linea orizzontale per un numero di volte sufficiente a riempire l’intera parete e sulla base del modulo reale. Usando il comando Taglia le singole linee sono state interrotte in corrispondenza dei contorni delle parti di restauro del muro (in bianco). Con la funzione Copia un piccolo insieme di giunti verticali è stato copiato più volte in mezzo ai filari orizzontali fino a riempire tutto il paramento, disponendoli in modo irregolare per evitare una impressione di serialità. I mattoni antichi infatti presentano lunghezze diverse, per cui i giunti verticali non sono allineati come quelli delle cortine moderne. 
Nella fig. 77a i cubilia dell’opera reticolata sono stati disegnati all’interno di una griglia geometrica regolare formata da linee a 45 gradi replicate con il comando Serie. Sono stati creati con la polilinea una decina di cubilia fra loro diversi e poi copiati più volte, a gruppi o singolarmente, all’interno della griglia avendo cura anche in questo caso di disporli in maniera “disordinata”.  
Anche per disegnare gli altri materiali si può risparmiare molto tempo ricorrendo a procedure seriali. Nell’esempio della fig. 77b (n. 2) il cocciopesto della vasca viene realizzato copiando più volte uno stesso campione rettangolare. Anche in tal caso però si avrà cura di introdurre delle varianti nelle dimensioni e nella disposizione delle repliche. Notare che il piano cartesiano è stato provvisoriamente orientato con uno dei lati della vasca per facilitare l’operazione (comando UCS oggetto). 
Tutti i materiali disegnati conviene salvarli come singoli file all’interno di una libreria in modo da poterli riutilizzare in altri disegni. 
In linea di massima non si adattano alla caratterizzazione archeologica per la loro schematicità i modelli di campiture forniti dai CAD quando si utilizza la funzione di Tratteggio. In taluni casi risulta utile semmai la campitura di colore solido; la si può ad esempio adottare come sfondo, dietro i materiali caratterizzati con le linee, per segnalare una muratura di restauro o post-antica. Una campitura realizzata con una fitta trama di punti si presta a riempire in modo gradevole zone di colore piatto, ad esempio nelle rappresentazioni di affreschi (fig. 76b n.3). 
E’ consigliabile fare largo uso dello zoom quando si lavora in CAD al fine di disegnare con la massima precisione. Si consideri per esempio che quando il disegno è fitto di linee lo Snap all’oggetto può calamitare il cursore del mouse su punti diversi da quelli voluti; se l’immagine non è ingrandita a sufficienza è facile non accorgersene. Occorre inoltre assicurarsi che tutte le principali linee di contorno — in particolare spline e polilinee — risultino ben chiuse o che si colleghino fra loro in modo esatto. E’ dunque buona regola ingrandire frequentemente l’immagine nello schermo rispetto alle dimensioni della stampa finale, a una scala 2:1 o superiore, per controllare il proprio operato. Allo stesso tempo si deve cercare di non perdere di vista il risultato finale e per questo occorre portare l’immagine più o meno alle stesse dimensioni che avrà la stampa per valutare se la densità della caratterizzazione è adeguata alla scala prescelta, o non sia invece troppo densa o troppo schematica.  
Per questi motivi bisogna abituarsi a passare rapidamente da uno zoom all’altro premendo sulle icone della barra relativa, le quali sono attivabili anche mentre si è in fase di esecuzione di un comando. 
 
8. Georeferenziare in 2d 
 
Come si è già detto i punti rilevati con la stazione totale si trovano automaticamente georeferenziati in un file vettoriale rispetto alle coordinate del sistema adottato durante il rilievo. Le piante raster importate in CAD potranno pertanto essere riferite a quello stesso sistema di coordinate se si avrà cura di allinearle con due o più punti del rilievo indiretto.  
Il procedimento, illustrato alla fig. 78, è molto semplice. Occorre che almeno due punti dell’immagine raster siano identificabili con i punti del rilievo (ad esempio una coppia di picchetti del saggio di scavo rilevati con la stazione totale, la cui posizione è riportata sull’originale a matita). L’immagine raster viene pertanto importata nel file vettoriale contenente i punti topografici. Si attiva il comando Allineaanche digitandone il nome nella riga di comando —; il programma chiede di indicare con un clic del mouse un punto del disegno da allineare (punto di origine) e poi con un altro clic il relativo punto di destinazione. La procedura va ripetuta per almeno un’altra coppia di punti omologhi. L’immagine si allinea immediatamente ai punti prescelti e, su richiesta, viene automaticamente scalata tenendo conto delle distanze tra questi. 
La stessa procedura può essere adottata per allineare qualunque pianta, sia raster che vettoriale, a un’altra pianta già georeferenziata utilizzando gli elementi in comune. Nell’esempio alla fig. 44 (Cap. 5) abbiamo mostrato il procedimento utilizzato per inserire la pianta di un saggio di scavo in una mappa catastale della zona. Si è avuto cura di rilevare gli spigoli dei fabbricati adiacenti riportati nella mappa catastale e di segnarne la posizione sulla pianta archeologica. In CAD il file dello scavo viene quindi sovrapposto e orientato al file catastale allineando gli spigoli in comune. 
Si è già detto però che questo metodo è approssimativo. Spesso nelle piante catastali si riscontrano errori consistenti nelle distanze anche tra fabbricati vicini.  
 
9. I riferimenti esterni 
 
Le piante georeferenziate pertinenti alla stessa area sono automaticamente sovrapponibili. Un comando del programma (Inserisci xrif = riferimenti esterni) consente di introdurre all’interno di un file altre planimetrie vettoriali. Sulla riga di comando viene richiesto un punto d’inserimento: se le varie piante sono georeferenziate rispetto a un comune sistema di coordinate, si immetterà il valore 0,0. 
Il CAD dispone di una finestra di gestione dei vari riferimenti esterni importati nel disegno dove questi sono elencati e possono essere visualizzati o nascosti attivando o disattivando i relativi pulsanti (fig. 79). Un documento inserito come xrif resta un file esterno rispetto a quello in cui è stato caricato, con un link di tipo ipertestuale, pertanto non occupa spazio aggiuntivo della memoria. Ogni riferimento esterno può essere modificato solo intervenendo nel file originale. Le modifiche saranno visualizzate di conseguenza nel file che lo ospita. 
Un caso tipico di gestione dei riferimenti esterni è quello delle planimetrie relative a più livelli di uno stesso corpo di fabbrica: nella fig. 79 si vedono in basso in sovrapposizione le piante dei quattro piani dell’edificio, le quali risultano attivate (“caricate”) nella finestra di gestione degli xrif. In alto è visualizzata invece soltanto la pianta del secondo livello. Nel caso della documentazione grafica di scavo possono essere sovrapposti come riferimenti esterni al file della pianta generale di fine scavo gli overlay delle singole unità stratigrafiche.  
Le piante sovrapponibili come xrif possono differenziarsi per temi oltre che per livelli. Un caso tipico è quello dei grandi scavi archeologici dove si utilizzano diverse planimetrie prodotte dai vari operatori del cantiere e costantemente aggiornate, le quali sono georeferenziate e quindi sovrapponibili, ad esempio la pianta dei resti archeologici, l’orografia a curve di livello, lo stato attuale dei luoghi, il progetto di urbanizzazione, la pianta dei punti del rilievo topografico di dettaglio.  
La georeferenziazione delle varie piante rispetto a un sistema di riferimento comune facilita in primo luogo lo scambio di dati tra i diversi soggetti. I file dei rilievi indiretti eseguiti giornalmente in cantiere dalla equipe che opera con la stazione totale possono essere inviati per e-mail al gruppo degli archeologi che eseguono i rilievi diretti. Questi provvederanno a inserirli in una pianta topografica d’insieme, nella quale raggruppamenti di punti pertinenti a determinati saggi di scavo possono essere selezionati e rielaborati per essere stampati alla scala dei rilievi diretti su tavole da portare in cantiere. I dati provenienti dal rilievo saranno successivamente vettorializzati e inviati, sempre attraverso internet, allo studio di progettazione che deve decidere, sulla base delle risultanze degli scavi, dove insediare le opere di urbanizzazione. 
Un file inviato da un altro operatore può essere collegato come riferimento esterno, ma in alternativa lo si può inserire direttamente all’interno del proprio documento per mezzo di un semplice copia-incolla. Nel file d’origine va attivato il comando Copia con punto base; se entrambe le planimetrie sono georeferenziate si immettono nella riga di comando i valori di coordinate 0,0, si selezionano gli oggetti da copiare e si conclude con l’Invio (fig. 80 n. 1). Si apre poi il file di destinazione e si incolla indicando come punto d’inserimento nuovamente il valore 0,0 (n. 2). Se i disegni invece non sono georeferenziati il punto base da indicare nel copia-incolla sarà un elemento comune a entrambi i file (ad esempio un picchetto dello scavo) sul quale si fa clic con il mouse sia nel documento di origine che in quello di destinazione (fig. 80 nn. 3, 4). L’oggetto importato sarà poi eventualmente orientato al disegno che lo ospita per mezzo della procedura di allineamento descritta nel precedente paragrafo.  
Gli oggetti copiati e incollati non sono riferimenti esterni ma diventano parte del file di destinazione. In taluni casi è comodo incollarli come blocchi, per poterli selezionare e modificare tutti insieme; potranno venire successivamente divisi con il comando Esplodi situato sulla barra degli strumenti di modifica (fig. 73). 
Alcuni CAD amministrano riferimenti esterni e immagini raster nella stessa finestra come fanno i GIS. Questa funzionalità permette di gestire anche situazioni composite per quanto riguarda la documentazione di un determinato contesto. Piante a matita o a china scansionate potranno fare da sfondo ad altri disegni parzialmente o totalmente vettorializzati pertinenti la stessa area. Trattandosi di documenti esterni conviene conservarli nella stessa cartella del file ospitante (host), altrimenti una volta spostati dal computer in cui sono stati creati i collegamenti, il programma non riuscirà a ritrovare il percorso. 
 
10. Il completamento del disegno e la stampa 
 
I disegni vanno completati con scritte e vari simboli grafici (bussola, scala, quote, frecce delle sezioni, croci di sovrapposizione, cartiglio con i dati sulla tavola, ecc). Questi vengono disegnati la prima volta che si utilizzano e poi salvati in un’apposita libreria. Una finestra del programma permette di visualizzare le varie librerie grafiche e di trascinare con il mouse sullo schermo gli oggetti che vi sono contenuti (fig. 81). Librerie grafiche con vari tipi di simboli sono generalmente messe a disposizione dagli stessi programmi CAD oppure si trovano su internet. Questa procedura sarebbe meglio eseguirla — anche se non tutti lo fanno - all’interno di un’apposita finestra, attivabile con un tasto situato nella parte inferiore dello schermo, denominata Layout o Spazio carta. In questo ambiente viene progettata la tavola da stampare ed è possibile creare più viste dello stesso disegno anche in scale diverse. Si lavora nelle scale di stampa e non più in quella 1:1. 
Eseguendo il comando Stampa si apre la finestra per le relative impostazioni: qui vanno indicati la stampante utilizzata, le dimensioni e l’orientamento del foglio, la scala e altri fattori. Gli spessori dei pennini vengono generalmente definiti nella finestra dei layer. E’ possibile comunque selezionare un file di stampa dove specificare ulteriori informazioni, anche relativamente ai colori da utilizzare. Un’apposita finestra fornisce un’anteprima. 
I file dei CAD generici vengono ormai tutti salvati in DWG. La finestra del comando Salva con nome permette di scegliere tra l’ultima versione DWG del programma e quelle meno recenti; quest’ultime danno più garanzia di essere aperte da tutti i destinatari. E’ una buona idea anche fare una conversione finale dei rilievi vettorializzati in un formato raster avente le stesse caratteristiche grafiche di una tavola stampata e che chiunque sarà in grado di visualizzare al computer. Alcuni CAD esportano in BMP ma le immagini sono molto sgranate, tanto che conviene semmai stampare i disegni vettoriali e scansionarli. Ottimo formati di esportazione sono il PDF apribile con Adobe Reader o Photoshop e l’EPS che è un formato vettoriale trasparente gestibile da programmi per immagini raster e dai quali può essere a sua volta convertito in TIFF o JPEG. Si esporta in EPS e PDF dalla finestra di stampa, selezionando uno di questi formati nell’elenco delle stampanti collegate al computer.
 
 
 
 
 
 
 
 
 
 
 
 
 
 
 
 
 
 
 
 
 
 
 
 
 
 
 
 
figura 69 
 
 
 
 
 
 
 
 
 
 
 
 
 
 
 
 
 
 
 
 
 
 
 
 
 
 
 
 
 
 
 
 
 
 
 
 
 
 
 
 
 
 
 
 
 
 
 
 
 
figura 70 
 
 
 
 
 
 
 
 
 
 
 
 
 
 
 
 
 
 
 
 
 
 
 
 
 
 
 
 
 
 
 
 
 
 
 
 
 
 
 
 
 
 
 
 
 
 
 
figura 71a 
 
 
 
 
 
 
 
 
 
 
figura 71b 
 
 
 
 
 
 
 
 
 
 
 
 
 
 
 
 
 
 
 
 
 
 
 
 
 
 
 
 
 
 
 
 
 
 
 
 
 
 
 
 
 
 
 
 
 
 
 
 
 
 
 
 
figura 72 
 
 
 
 
 
 
 
 
 
 
 
 
 
 
 
 
 
 
 
 
 
 
 
 
 
 
 
 
 
 
 
 
 
 
 
 
 
 
 
 
 
 
 
 
 
 
 
 
 
 
 
 
 
 
 
 
 
 
 
 
 
 
 
 
 
 
 
 
 
 
 
 
 
 
 
 
 
 
 
 
 
 
 
 
 
 
 
 
 
 
 
 
 
 
 
 
 
 
 
 
 
 
 
 
 
 
figura 73 
 
 
 
 
 
 
 
 
 
figura 74a 
 
 
figura 74b 
 
 
 
 
 
 
 
 
figura 75 
 
 
 
 
 
 
 
 
 
 
 
 
 
 
 
 
 
 
 
 
 
 
 
 
 
 
 
 
 
 
 
 
 
 
 
 
 
 
 
 
 
 
 
figura 76a 
 
 
figura 76b 
 
 
 
 
 
 
 
 
 
 
 
 
 
 
 
 
 
 
 
 
figura 77a 
 
 
figura 77b 
 
 
 
 
 
 
 
 
 
 
 
 
 
 
 
 
 
 
 
 
 
 
 
 
 
 
 
 
 
 
 
 
 
 
 
 
 
 
 
 
 
 
figura 78 
 
 
 
 
 
 
 
 
 
 
 
 
 
 
 
 
 
 
 
 
 
 
 
 
 
 
 
 
 
 
figura 79 
 
 
 
 
 
 
 
 
 
 
 
 
 
 
 
 
 
 
 
 
 
 
 
 
 
figura 80 
 
 
 
 
 
 
 
 
 
 
 
 
 
 
 
 
 
 
 
 
 
figura 81 
 
 
 precedente
 
inizio pagina
successiva