001 indice analitico pagina a iper://home.aeh|1 acquisto libro iper://home.aeh|0
 
 
 
 
 
 
 
 
 
 
 
 
 
 
 
 
 
 
 
 
 
 
 
 
 
 
Capitolo XII 
Il disegno e la modellazione 3d
 
 
 
1. Le viste 
 
Lavorare in 3d implica innanzitutto abituarsi a utilizzare diversi punti di vista. Questi possono essere selezionati, in modo semplice e intuitivo, da un’apposita barra dedicata alle modalità di visualizzazione (fig. 87a n. 1). Le icone consentono vedute dall’alto, da sotto, laterali, assonometriche (n. 2). Si può passare rapidamente da una vista all’altra - e contemporaneamente utilizzare gli zoom - anche mentre si è in fase di esecuzione di un comando. Tutti i comandi relativi alle modalità di visualizzazione sono disponibili anche nel relativo menù a tendina. 
Si può decidere di lavorare con una sola finestra, corrispondente all’area di disegno, e passare frequentemente da un punto di vista all’altro oppure suddividere l’area di disegno in due, tre o quattro finestre, ciascuna impostata con una determinata vista: si lavora dentro una delle finestre, selezionandola con un semplice clic del mouse, ma le operazioni in corso d’esecuzione sono mostrate contemporaneamente anche dalle altre. Ciò permette di controllare meglio quello che si sta facendo. È possibile cominciare a disegnare una linea in una finestra, selezionarne un’altra con un clic del mouse e terminare il disegno della linea all’interno di quest’ultima. 
Il comando Orbita — la cui icona assomiglia al pianeta Saturno (fig. 87b n. 3) — permette di ruotare liberamente nello spazio tridimensionale per mezzo del mouse gli oggetti raffigurati nello schermo e di posizionarli secondo qualunque punto di vista. 
Si possono inoltre selezionare tramite un altro set di comandi diversi stili di visualizzazione (fig. 87b nn. 4, 5), i quali comprendono questi tre tipi fondamentali: 
- Wireframe. Significa “ossatura”. Mostra tutte le linee del modello in trasparenza . E’ utile quando si disegna per agganciarsi a linee e angoli situati in secondo piano. La visione però può diventare confusa in disegni complessi. 
- Nascondi. Sono evidenziate solamente le linee in primo piano 
- Ombreggiata, con o senza spigoli evidenziati. Le superfici sono più realisticamente colorate e ombreggiate. 
 
2. L’UCS 
 
Lo spazio 3d è definito da tre assi cartesiani x, y, z identificati da un’icona collocata sempre in corrispondenza dell’origine (se il punto d’origine si trova fuori dallo schermo l’icona viene mostrata in basso a sinistra nell’area di disegno). Si è già visto, trattando del disegno 2d, che lo spazio cartesiano corrisponde a un sistema di coordinate assolute (globale) ma che, per mezzo del comando UCS (User Coordinate System), si possono provvisoriamente impostare all’interno del file dei sistemi di riferimento locali allineandoli a un qualunque oggetto del disegno. Si può poi tornare al sistema di riferimento originario del file attivando il comando UCS Globale (distinto dall’icona con il mappamondo) (cfr. Cap. 10, fig. 70). 
Per disegnare in 3d bisogna ripetutamente spostare e ruotare gli assi cartesiani utilizzando le varie icone della barra relativa. Il principio fondamentale da cui bisogna partire per comprendere il funzionamento dell’ UCS è che nel CAD si disegna tendenzialmente sul piano cartesiano definito dagli assi x, y (piano di costruzione), situato alla quota 0 dell’asse z. Questo piano può essere ben evidenziato se si attiva la griglia, la quale è sempre orientata con gli assi x, y e corrisponde al “tavolo da disegno” (fig. 88a n. 1). L’icona che mostra l’orientamento dei tre assi si colloca sempre sullo spigolo della griglia che coincide con l’origine. 
Nel disegno 2d il valore della z resta inespresso e tutte le linee giacciono sul piano x, y. In 3d è invece possibile disegnare anche al di sopra o al di sotto del piano di costruzione. Una delle modalità per tracciare le linee in 3d è quella di immettere valori numerici nella riga di comando con gli stessi criteri che abbiamo visto nel disegno bidimensionale: in questo caso però va aggiunto ai valori delle coordinate x e y — dietro una seconda virgola — il valore della z. L’esempio alla fig. 88a (n. 2) mostra la costruzione di due segmenti che procede verso l’alto a partire dal piano x, y immettendo nella riga di comando coordinate assolute x ,y, z, con incrementi di quest’ultima: (30,50,0; 100,50,120; 100,50,200). L’immissione del valore z “stacca” la linea dalla griglia direzionandola verso l’alto. Anche l’uso dell’Esnap (o Osnap) può forzare le linee a salire o scendere di quota, abbandonando il piano di costruzione (n. 9). 
Se però si disattiva la calamita e non s’introducono valori numerici contenenti la z, l’oggetto disegnato andrà sempre a collocarsi sul piano x, y (n. 1). Per questo motivo quando si lavora in 3d conviene far coincidere il piano di costruzione volta per volta con le superfici su cui si deve disegnare . 
Nei tre esempi riportati alla fig. 88a (nn. 3, 4, 5) si vede che il piano di costruzione è stato posizionato prima sulla facciata dell’edificio per disegnare la porta. Poi è stato ruotato di 90 gradi sull’asse delle y per farlo coincidere con il lato sinistro della casetta dove è stata disegnata la finestra. Infine per tracciare l’apertura rettangolare sul tetto spiovente è stato allineato a quest’ultimo. 
Per spostare il piano cartesiano si utilizzano le icone della barra degli UCS (n. 10). Disegnando in tre dimensioni è particolarmente utile il comando Tre punti (cui si è fatto ricorso negli esempi nn. 3-5 della fig. 88), il quale consente di orientare il nuovo piano selezionando tre punti che lo definiscono: con la calamita attivata si fa il primo clic sull’angolo che dovrà coincidere con l’origine, poi su un punto — o una linea — che determina l’asse delle x; infine su un punto — o su una linea — che definisce l’asse delle y. In alternativa si può azionare un altro comando della barra (UCS faccia) che allinea gli assi x e y alla faccia di un solido da selezionare.  
Il comando Tre punti è stato utilizzato anche per orientare il piano alla faccia laterale dell’edificio (esempio n. 4). In questo caso, partendo dalla posizione in cui si trova l’UCS nell’esempio n. 3, dove è allineato alla facciata, si può ricorrere in alternativa a uno dei pulsanti della barra che consentono di ruotare gli assi cartesiani: basterà eseguire una rotazione di 90 gradi sull’asse delle y. 
Gli esempi nn. 6, 7 della fig. 88b mostrano come si può utilizzare la coppia di comandi Copia/Incolla con lo spostamento del piano di costruzione. Se si copia un oggetto che è orientato rispetto al piano impostato in quel momento e subito dopo si modifica la posizione dell’UCS, quando si andrà a incollare l’oggetto questo si allineerà al nuovo sistema di riferimento. Nell’esempio proposto si vede che per copiare sul tetto dell’edificio la finestrella che era stata disegnata sul lato sinistro è stato attivato il comando Copia avendo il piano di costruzione orientato con la parete (n. 6); poi è stato allineato il piano x, y alla falda del tetto e quindi eseguito il comando Incolla (n. 7). 
Se si utilizza il comando Copia con punto base si può agganciare l’oggetto con il puntatore su uno spigolo e incollarlo nel punto voluto tenendolo sullo stesso spigolo. Se altrimenti quando si copia si specifica come punto base il valore di coordinate 0,0 e poi si incolla con punto d’inserimento 0,0, l’oggetto incollato manterrà la stessa distanza dall’origine. Si può poi eventualmente modificarne la posizione con il comando Sposta. 
Un comando nel menù Visualizza consente di impostare un punto di vista ortogonale al sistema di coordinate locale adottato in quel momento (UCS corrente). Nell’esempio n. 8 della fig. 88b la vista è ortogonale alla falda del tetto la quale coincide con il piano cartesiano. Si fa presente tuttavia che quando si disegna utilizzando la calamita le linee possono essere attirate anche da spigoli od oggetti situati fuori dal piano di costruzione (n. 9). Lavorando con una sola vista ortogonale al piano è difficile rendersene conto. Per questo motivo conviene disegnare in 3d con viste assonometriche oppure con due o più finestre. 
 
3. Georeferenziare in 3d 
 
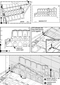
Sulla base delle cose dette fin qui sarà possibile georeferenziare i rilievi nello spazio tridimensionale. Vediamo pertanto quale procedura si può seguire per posizionare la sezione raffigurata nella fig. 89 (n. 2) sul relativo tracciato indicato in pianta (n. 1), come ruotare la sezione in verticale, come spostare infine sia la pianta che la sezione lungo l’asse z per portarle alle rispettive quote sul livello del mare.  
Assumiamo che la pianta sia stata già referenziata rispetto ai valori x e y del sistema di proiezione geodetico, ma che essa giace ancora alla quota 0 dell’asse z. Ci è noto che il pavimento del piano dell’edificio rappresentato in pianta si trova a m. 33 s.l.m.; dobbiamo pertanto georeferenziare entrambi i disegni tenendo conto di questo valore. La sezione si trova ancora sul piano orizzontale x, y del disegno 2d in un file a parte. Questa è la procedura che si può seguire: 
- Si copia la sezione specificando come punto base un angolo di un ambiente riconoscibile sulla pianta (n. 3). 
- Si aziona il comando UCS oggetto il quale consente di allineare il sistema di riferimento a un oggetto del disegno selezionato con il mouse: si seleziona la linea della pianta che corrisponde al tracciato della sezione.  
- L’icona delle UCS che corrisponde all’origine viene a collocarsi all’estremità sinistra della linea selezionata (n. 4); il piano cartesiano giace in orizzontale. Si preme allora il pulsante della barra degli UCS che consente di ruotare l’asse delle x. Si dà una rotazione di 90 gradi in modo che l’asse delle y si disponga verso l’alto (n. 5). 
- Si incolla la sezione specificando come punto d’inserimento l’intersezione della linea sulla pianta con la parete precedentemente indicata. La sezione verrà a collocarsi sul piano verticale provvisoriamente determinato dalla posizione dell’UCS (n. 6). 
- La pianta si trova ancora a quota 0. Andrà pertanto spostata a quota m. 33,00 s.l.m. insieme alla sezione. Per fare questo si ripristina l’UCS globale in modo che l’asse delle z torni a essere direzionato verso l’alto. Si attiva quindi il comando Sposta e si selezionano sia la pianta che la sezione. La riga di comando chiede il punto base dello spostamento; si risponde immettendo i valori relativi (x) 0, (y) 0, (z) 0; si immettono successivamente i valori del punto di destinazione che determinano l’entità dello spostamento lungo l’asse z: (x) 0, (y) 0, (z) 33. In alternativa si può effettuare lo spostamento prima del ripristino dell’UCS globale, lungo l’asse delle y che è orientato verso l’alto (esempio n. 6). In tal caso il punto base dello spostamento sarà (x) 0, (y) 0, il punto di destinazione (x) 0, (y) 33. 
La pianta è stata dunque alzata alla quota m. 33 s.l.m. A quello stesso livello è stato portato anche il piano pavimentale degli ambienti rappresentati in sezione il quale coincide con quello della pianta. Tutti gli altri elementi della sezione sono quotati di conseguenza. Sarà possibile conoscere la quote di un punto qualunque dell’edificio appoggiandovi il puntatore con la calamita attivata: il valore della z sarà visualizzato sulla barra di stato dietro le altre due coordinate.  
Si consiglia di effettuare la georeferenziazione di piante e sezioni importandole nel file come riferimenti esterni o come blocchi, in modo che ogni grafico costituisca un oggetto unico e sia facilmente selezionabile con un solo clic del mouse. 
 
4. La costruzione dei solidi 
 
Il CAD consente di costruire solidi tridimensionali. I relativi comandi sono attivabili da un’apposita barra oppure dal menù a tendina Disegna/Solidi. La maggior parte delle icone servono alla realizzazione di solidi primitivi: parallelepipedi, sfere, cilindri, coni, ecc. Il metodo è semplice e intuitivo. Come al solito bisogna scegliere fra le varie procedure proposte dalla riga di comando, immettendo valori numerici oppure cliccando con il mouse sullo schermo. Bisogna dire tuttavia che assai raramente nelle ricostruzioni archeologiche e architettoniche si adottano forme geometriche di questo tipo.  
Il procedimento più utile e al quale si fa comunemente ricorso è l’estrusione. Con il comando Estrudi il profilo di qualunque figura geometrica bidimensionale chiusa da una linea di contorno viene proiettato in senso ortogonale a questa per un’altezza stabilita dall’utente, generando una sorta di prisma (fig. 90 nn. 1, 2). Il comando chiede di default l’altezza dell’oggetto tridimensionale da creare. Se s’immette un valore positivo l’estrusione avverrà nel senso del semiasse z positivo, cioè verso l’alto, altrimenti introducendo il segno meno avrà luogo verso il basso. 
L’estrusione funziona solo con figure geometriche chiuse: rettangoli, poligoni, cerchi, ellissi, anche figure con forme molto irregolari; l’importante è che il contorno di quest’ultime sia stato costruito con una spline o con una polilinea. Le figure contornate da linee singole, comprese quelle disegnate con la sketch, non possono essere estruse come forme solide. 
In fase di costruzione di un solido la riga di comando offre altre due soluzioni: 
- Estrusione con rastremazione. Oltre all’altezza del solido da creare si può immettere il valore di un angolo, calcolato a partire dall’asse verticale, il quale determina una rastremazione uniforme su tutte le facce dell’oggetto (fig. 90 n. 4). 
- Estrusione lungo una traiettoria. Si selezionano la figura geometrica da estrudere e una linea che costituisce il percorso dell’estrusione. Nell’esempio n. 3 della fig 90 l’arco tridimensionale è stato creato estrudendo il rettangolo, che corrisponde alla sezione dell’ elemento all’imposta, lungo la linea semicircolare. La traiettoria può essere costituita da una linea singola, rettilinea o ad arco, ma anche da polilinee o spline con percorsi assai irregolari. 
Un altro metodo di costruzione dei solidi, il quale viene adottato per gli oggetti circolari, è la rivoluzione (n. 6). Si disegnano la sezione di una metà dell’oggetto e una linea corrispondente all’asse attorno al quale sarà rivoluzionata la figura. La riga di comando chiede di selezionare la forma 2d da rivoluzionare, di indicare due punti che definiscono l’asse di rotazione e di immettere il valore di un angolo (360 gradi per creare un oggetto circolare; 180 gradi per generare invece un oggetto semicircolare). Anche in questo caso la figura bidimensionale da trasformare in solido deve essere costituita da un contorno chiuso, disegnato con una spline o una polilinea. 
Alle fig. 91a e 91b sono riportati alcuni esempi di oggetti che si possono costruire con i procedimenti di estrusione e rivoluzione. 
 
5. La modificazione dei solidi 
 
I solidi possono essere editati innanzitutto utilizzando alcuni dei comandi della barra degli strumenti di modifica solitamente impiegati per il disegno 2d: copia, sposta, serie, specchia, ruota, scala, offset. Tutte le operazioni di trasformazione sono orientate con il piano cartesiano corrente (fig. 92a). Altri comandi sono invece specifici per le operazioni di trasformazione dei solidi e sono distribuiti su barre e menù appositi (per solito Edita/Modifica solidi).  
Il comando Trancia consente di tagliare qualunque forma solida. Si determina la direzione del piano di taglio facendo clic su due punti dell’oggetto. Altrimenti si può costruire un rettangolo corrispondente al piano di taglio e inserirlo nell’oggetto da secare aiutandosi con il comando UCS. In questo caso, scegliendo tra le varie alternative proposte dalla riga di comando, si seleziona il volume da tranciare e poi l’oggetto che definisce il piano di taglio, il quale funziona come una vera e propria lama. 
L’esempio della fig. 92b spiega come è stata tagliata a 45 gradi la cornice di una porta. E’stato prima impostato un piano cartesiano orizzontale sulla sommità della cornice per disegnare il rettangolo della lama; l’ UCS è stato quindi ruotato di 90 gradi per definire un piano cartesiano verticale sul quale effettuare la rotazione dell’oggetto. Attivando il comando Ruota è stata impressa al rettangolo una rotazione di 45° imperniata sullo spigolo dov’è l’origine (punto base della rotazione). Si è attivato quindi il comando Trancia per eseguire il taglio. 
I comandi Unisci, Sottrai, Interseca eseguono sui solidi le cosiddette operazioni booleane.  
Il primo di questi consente di unire due oggetti solidi adiacenti o parzialmente sovrapposti trasformandoli in un oggetto unico.  
Il comando Sottrai si utilizza per sottrarre una forma solida da un’altra. E’ particolarmente indicato per realizzare delle aperture nelle strutture murarie (fig. 92c n. 2). Va creata all’interno della parete una forma corrispondente all’ingombro della porta o della finestra. Si attiva poi il comando Sottrai, il quale chiede di selezionare prima l’oggetto da modificare e poi quello da sottrarre. Premendo Invio quest’ultimo viene eliminato e al suo posto rimane un vuoto. 
Il comando Interseca crea un solido composto dalle sole parti comuni di due oggetti che si compenetrano; i volumi che restano al di fuori dell’intersezione vengono pertanto eliminati. E’ utile per la costruzione delle volte a crociera in base al seguente procedimento (fig. 92c n. 1): 
- si disegnano con la polilinea i profili di due lati fra loro ortogonali (A, B) della volta a crociera;. 
- si estrude il profilo A, per una profondità pari alla larghezza dell’altro, ricavando il volume di una volta a botte; 
- si ricava una seconda volta a botte dall’estrusione di B; 
- si esegue il comando Interseca e si selezionano i due oggetti. Le parti comuni alle due volte a botte determinano il volume della crociera. 
Altri comandi del menù Edita consentono di modificare gli spigoli o le facce dei solidi, per esempio dando modo di copiarli, colorarli, ruotarli, ecc. Fra i più utili è da segnalare il comando Estrudi facce (in alternativa Offset facce che è molto simile) il quale consente di allungare o accorciare un solido in senso ortogonale alla faccia selezionata. 
Alla fig. 93 è illustrato il procedimento per adattare una cornice di una porta, precedentemente costruita, all’interno di un’apertura che risulta trenta centimetri più larga: 
- Per prima cosa si seziona l’architrave con il comando Trancia infilando l’oggetto a forma di lama che determina il piano di taglio (n. 1) (ma in alternativa si può fare clic con il mouse su due punti dell’architrave situati sullo stesso allineamento trasversale). Il comando Trancia crea due oggetti distinti, separati dal limite di taglio (n. 1).  
- Si esegue il comando Sposta per muovere il pezzo destro dell’architrave e la sottostante cornice verticale 30 cm verso destra (n. 2). Il piano cartesiano deve essere orientato con la fronte della porta. Si effettua lo spostamento immettendo i seguenti valori numerici nella riga di comando: punto base (x) 0, (y) 0; secondo punto (o punto di destinazione) (x) 0.30, (y) 0.  
- Per allungare uno dei due pezzi dell’architrave si utilizza il comando Estrudi facce. Si seleziona la faccia dell’elemento a sinistra situata verso il solido da raggiungere (n. 3). Si immette il valore dell’estrusione (0.30): il pezzo sinistro dell’architrave si allungherà di conseguenza (n. 4) (l’immissione di un valore negativo determina invece un accorciamento dell’oggetto). 
- Si esegue infine il comando Unisci per trasformare l’architrave di nuovo in un blocco unico. 
 
6. Le superfici 
 
I metodi di costruzione solida tradizionale dei CAD generici, basati sull’estrusione, la rivoluzione e alcune operazioni di modifica non consentono una creazione completamente libera degli oggetti 3d. Tutte le figure modellate, per quanto complesse, sono vincolate entro una costruzione di tipo geometrico. Con il ragionamento logico si riescono a realizzare ciò nonostante una grandissima varietà di forme, forse quasi tutti gli elementi che compongono comunemente un organismo architettonico. Tuttavia ci sono alcune cose che non è possibile fare utilizzando tali procedure, ad esempio sculture, bassorilievi, muri o blocchi usurati su tutte le facce, superfici stradali irregolari — con dossi, cunette, schiena d’asino o solchi delle ruote dei carri - , terreno naturale, ecc. 
Per costruire oggetti di forma irregolare si fa solitamente ricorso alla modellazione per superfici (mesh) invece che alla modellazione solida. Le superfici si differenziano dai solidi per la mancanza di spessore. Si possono creare superfici geometriche estrudendo linee o archi (fig. 94a  n. 1), oppure creando una serie di oggetti tridimensionali primitivi (parallelepipedi, sfere, coni, ecc.) (n. 2), generalmente elencati in un’apposita barra degli strumenti di disegno 3d, con procedure analoghe a quelle adottate per le forme solide. In questo caso però gli oggetti creati sono cavi al loro interno e alla pari delle altre mesh non possono essere oggetto di trasformazioni booleane. 
Le superfici irregolari si costruiscono invece unendo dei punti oppure due o più segmenti, anche curvilinei, diversamente orientati e con profili difformi (n. 3). Si possono distinguere i seguenti tipi: 
- Le superfici rigate che sono generate fra due linee separate e distanti da selezionare. 
- Le superfici di Coon, create fra quattro linee contigue. Queste andranno disegnate modificando volta per volta l’orientamento dell’ UCS. Le estremità devono risultare perfettamente combacianti; vanno pertanto collegate attivando l’Osnap al punto finale. 
- Le superfici generate tra punti in qualunque numero e variamente disposti nello spazio 3d. 
In tutti questi casi la forma della mesh riempie lo spazio situato in mezzo alle linee o ai punti selezionati adattandosi gradualmente al profilo e alla disposizione di quelli. La superficie è definita da un reticolo di linee parallele oppure a griglia che creano delle sfaccettature. Tramite un apposito comando si può impostare la densità del reticolo per aumentare o diminuire la definizione della mesh. 
Le superfici rigate risultano utili tra le altre cose per realizzare modelli digitali del terreno (DTM) a partire da una planimetria a curve di livello (fig. 94b). Il procedimento da adottare sarà il seguente: 
- si vettorializzano le singole curve di livello con una spline disegnando sul piano cartesiano x, y (n. 1); 
- si alza ciascuna curva di livello alla rispettiva quota altimetrica per mezzo del comando Sposta (n. 2); 
- si esegue il comando che consente di creare le superfici rigate collegando le spline a coppie (n. 3). 
 
7. I programmi di modellazione avanzata 
 
Le mesh realizzate con i CAD generici presentano tuttavia ancora una relativa rigidità in quanto non possono essere tagliate o trasformate con operazioni booleane (unione, sottrazione, intersezione), né si possono manipolare le curve più o meno fitte che definiscono la forma del reticolo in modo da modificarne la forma. Inoltre non avendo spessore non è possibile calcolare volumi e valori di massa degli elementi architettonici che esse rappresentano.  
Una costruzione completamente libera che consente la creazione e la trasformazione di qualunque tipo di forma viene assicurata da alcuni programmi di modellazione particolarmente intelligenti che vengono comunemente definiti software di modellazione avanzata o di fascia alta oppure di modellazione tout court in quanto i CAD generici, anche tridimensionali, sarebbe più corretto considerarli dei software di disegno.  
La maggior parte di questi presentano interfaccia, disposizione dei comandi e procedure molto diverse rispetto ai CAD generici che non ne rendono facile l’uso a chi si è abituato a lavorare con questi ultimi. Gli strumenti che mettono a disposizione degli utenti per la creazione di oggetti tridimensionali si possono sintetizzare in questo modo:  
- Una più vasta gamma di forme primitive che comprendono ad esempio prismi, poliedri, clessidre, capsule ecc (fig. 95a n.1).  
- Una serie di modificatori che vengono applicati ai singoli oggetti causando vari tipi di deformazioni, ad esempio torsioni, svasature, sfaccettature, disturbi e così via. Nelle finestre dei modificatori si immettono dei valori numerici che determinano la percentuale di deformazione ed eventualmente il numero delle sub-superfici da creare (iterazioni) (fig. 95a nn. 2-4). 
- Alcune categorie di oggetti sono definiti da griglie dinamiche che possono essere modificate manualmente in ogni punto. Tra questi i più importanti sono le NURBS (Non-Uniform Rational B-Splines), una classe di curve geometriche le quali sono in grado di descrivere accuratamente qualunque figura. Esse formano dei reticoli, la cui densità viene stabilita dall’utente, ai cui incroci sono situati dei punti di controllo che possono essere singolarmente selezionati con il puntatore e spostati in una qualunque direzione. In questo modo è possibile modificare il profilo dell’oggetto in ogni sua parte (fig. 95b). 
La tradizionale distinzione tra solidi e superfici diventa nella sostanza priva di significato, in quanto su entrambi i tipi di oggetti si possono imprimere le più svariate trasformazioni. Questo tipo di modellazione si presta per progettare navi e automobili come a creare personaggi di cartoni animati e video giochi.  
Le NURBS, come ogni altro oggetto 3d, possono essere create a partire dai procedimenti tradizionali di costruzione dei solidi - geometrie tridimensionali primitive oppure estrusione e rivoluzione di figure piane — e poi trasformate con i modificatori o agendo sui punti di controllo. Un ulteriore metodo di costruzione messo a disposizione da questi programmi, il quale risulta molto utile in taluni casi anche nelle ricostruzioni architettoniche, è il Loft. Esso consente di realizzare un solido o una superficie collegando due o più sezioni trasversali le quali possono avere contorni completamente diversi (fig. 96a nn. 1, 2). La forma creata si adatta in maniera graduale al profilo delle sezioni che ne definiscono il percorso. Collegando figure delimitate da un contorno chiuso viene generato un solido. Collegando linee aperte si crea una superficie. A quest’ultima si può eventualmente assegnare uno spessore in un secondo momento (n. 3). 
Il procedimento loft può essere utilmente adottato in campo architettonico ad esempio per la modellazione di volte irregolari. E’ il caso della volta di copertura dell’ambiente a sei lati dell’esempio  della fig. 96b: una volta a botte a pianta trapezoidale che si allarga gradualmente dal lato corto verso il centro dell’ambiente, scomponendosi sul lato opposto in due semilunette che in parte si intersecano. La costruzione della parte di volta a botte a pianta trapezoidale è stata risolta collegando due sezioni trasversali che ne definiscono le estremità opposte, quella delle semilunette ha richiesto invece l’interpolazione di sei sezioni trasversali orientate in senso ortogonale alle prime due. 
In questi ultimi anni comunque anche i CAD generici sono in rapida evoluzione. Autocad ha ad esempio introdotto numerose novità nella versione 2007, tra cui il Loft e un comando che consente di ispessire le superfici. È da prevedere che anche le altre case produttrici si metteranno rapidamente al passo. L’uso del Loft — ma in alternativa anche l’installazione di appositi plugin che circolano in internet e che consentono la solidificazione delle superfici rigate e di Coons — consentirebbe praticamente di risolvere la modellazione di edifici e altri manufatti archeologici interamente all’interno di un CAD generico e nel formato DWG. Questa soluzione sarebbe senz’altro da preferirsi perché garantirebbe una migliore interoperabiltà dei modelli 3d consentendone la diffusione e la gestione all’interno di sistemi CAD assai più diffusi, conosciuti e di più facile impiego. I modelli salvati in DWG potranno comunque essere importati in un software di modellazione evoluto per essere sottoposti ad alcune “limature” e al procedimento di rendering. 
 
8. Il postprocessamento dei dati del laserscanner 
 
La creazione di modelli tridimensionali costituiti da mesh è una delle principali funzioni dei programmi di postprocessamento dei rilievi con laserscanner. Questi software appartengono alla famiglia dei CAD in quanto consentono di disegnare ed elaborare figure vettoriali (punti, linee, superfici) all’interno di un sistema di coordinate spaziali. 
Come abbiamo visto al VI Cap. essi permettono innanzitutto di ricomporre le varie nuvole di punti che sono il prodotto di varie scansioni dello stesso manufatto effettuate da differenti punti di vista (procedura di allineamento o registrazione) (fig. 55). Supportano operazioni di pulizia e decimazione dei punti fuori posto o in eccesso Possono quindi generare automaticamente delle mesh collegando tutti i punti della nube. Le superfici sono costituite da una fitta rete di triangoli, i vertici di ciascuno dei quali corrispondono a tre punti vicini (fig. 97a n. 1). La struttura a triangoli viene evidenziata in modalità di visualizzazione wireframe; in alternativa si può avere della mesh una visione ombreggiata e a colori (n. 2).  
Questo genere di modelli tridimensionali, realizzati in maniera completamente automatica, hanno il limite di essere privi di informazioni utili. La mesh è un oggetto unico che si svolge in modo continuo e senza spessore tra i punti del rilievo, come un sudario che avvolge ogni cosa aderendo perfettamente agli oggetti e lasciando intravedere ogni dettaglio della loro forma. Un modello tridimensionale intelligente deve prevedere invece una netta distinzione fra insiemi di singole entità che abbiano in comune determinate proprietà. Nelle ricostruzioni archeologiche e architettoniche è necessario distinguere con chiarezza gli oggetti realizzati con lo stesso materiale o riconducibili a una determinata fase, quelle che noi definiamo in altre parole le Unità stratigrafiche.  
La mesh uniforme generata dalle nuvole dei punti dei rilievi con laserscanner, che è un super-oggetto, deve pertanto essere segmentata, cioè suddivisa in sotto-oggetti primari. Questi ultimi andranno quindi classificati, cioè assegnati a determinate categorie preordinate dall’operatore sulla base di un criterio logico. Nella prassi della grafica 3d si classifica utilizzando i layer. 
I modelli tridimensionali per essere davvero rispondenti alla realtà devono inoltre avere un volume. Non sempre si ottiene un volume coerente collegando in maniera automatica le superfici che definiscono le varie facce di un oggetto. In molti casi il rilievo con laser scanner non ci restituisce informazioni sugli spessori degli elementi architettonici. E’ il caso dei pavimenti o della maggior parte delle strutture che poggiano sul terreno. Ma può anche essere il caso, per fare un esempio, dei blocchi di un muro in opera quadrata variamenti disposti per testa o per taglio, oppure aventi funzione di rivestimento di un nucleo interno in emplecton o in opera cementizia. Per determinare le profondità dei vari elementi saranno necessari dei sondaggi, per il resto si formuleranno delle ipotesi sulla base delle proprie conoscenze delle strutture antiche e su ragionamenti logici. I volumi andranno pertanto realizzati con procedure manuali tenendo conto di informazioni di diverso tipo. E’ ovvio che la segmentazione e la classificazione dei singoli elementi architettonici è operazione preliminare alla estrusione dei volumi, in quanto ciascun elemento avrà uno spessore diverso rispetto agli altri.  
In conclusione un modello architettonico tridimensionale deve servire come strumento di lettura e di analisi di tutti gli aspetti di un edificio: volumetrici, strutturali, di distribuzione degli spazi interni, cronologici. La segmentazione e la costruzione solida sono funzionali anche per determinare il volume e i valori di massa dei singoli elementi, utilità che è fondamentale per eseguire calcoli sulla statica della costruzione e preliminare a qualunque attività di progettazione sul manufatto. La classificazione per mezzo dei layer è essenziale non solo per distinguere le singole unità stratigrafiche, ma anche ad esempio per differenziare lo stato attuale da eventuali ipotesi ricostruttive dello stato originario (cfr. Cap. XV). 
Le nuvole dei punti e le mesh prodotte dai rilievi con laser-scanner costituiscono dunque solo il punto di partenza di una procedura di modellazione tridimensionale. I software di postprocessamento di questo tipo di dati hanno pertanto sviluppato funzioni di modifica delle superfici e di disegno vettoriale finalizzati al completamento dei modelli. 
Le procedure di editing delle superfici prevedono ad esempio la chiusura di buchi delle zone rimaste in ombra durante il rilievo — questi vengono riempiti da una nuova porzione della mesh che si adatta al contorno circostante (fig. 97a n. 1, fig. 97b) - smussamento, tagli (fig. 97a n. 2), riduzione del numero dei triangoli, unione di superfici diverse.  
Gli stessi software consentono di tracciare linee vettoriali, agganciandole per mezzo dello snap a punti della nuvola scelti dall’operatore, i quali definiscono determinati contorni (fig. 97c nn. 3-5). Seguendo tale procedura sarà quindi possibile collegare le linee con comandi tipo il Loft per generare le mesh.  
La individuazione dei contorni da ricalcare risulta molto difficile quando si disegna in ambiente 3d in mezzo a nuvole che sono costituite da milioni di punti. Alcuni comandi provvedono a semplificare tale operazione. E’ prevista la possibilità di selezionare, per mezzo di una linea di contorno, determinati insieme di punti in modo da rendere solo quelli visibili e nascondere momentaneamente tutto il resto (fig. 97c n. 3). 
Alcuni software hanno sviluppato anche procedure di vettorializzazione semiautomatiche allo scopo di velocizzare il lavoro. Ad esempio sono in grado di riconoscere file di punti coincidenti con uno spigolo del manufatto e di collegarli automaticamente con una spline. Sono espedienti che hanno sicuramente una loro utilità nella modellazione di edifici moderni, ma funzionano poco in ambito archeologico dove i manufatti presentano generalmente profili erosi ed irregolari . 
Un altro comando consente di disegnare automaticamente delle sezioni all’interno delle nuvole. E’ sufficiente determinare l’andamento della sezione selezionando con il mouse due punti che ne definiscono il percorso: tutti i punti della nuvola giacenti sullo stesso asse verranno automaticamente collegati con una spline. In base alle indicazioni dell’operatore il programma sarà inoltre in grado di tracciare automaticamente un certo numero di sezioni parallele a quella, a una distanza costante (v. Cap. 6, fig. 57 n. 2). Si tratta ovviamente di linee continue che non distinguono i singoli oggetti situati lungo il tracciato e pertanto andranno successivamente segmentate con procedimento manuale. 
Funzionalità di segmentazione e classificazione in automatico di determinati insiemi di oggetti sono stati sviluppati prevalentemente nell’ambito del postprocessamento dei dati acquisiti con laserscanning aereo. La suddivisione opera direttamente sulle nuvole dei punti ed è pertanto preliminare alla costruzione delle mesh. Il software individua almeno tre principali insiemi di oggetti: terreno, alberi, edifici. Il riconoscimento dei punti pertinenti al terreno avviene sulla base di alcuni parametri geometrici (pendenze massime ammissibili, scarti in quota ecc.) (fig. 98 n. 1). Gli altri raggruppamenti vengono individuati avvalendosi di criteri diversi che tengono conto per esempio della disposizione dei punti o dei valori dell’intensità del segnale laser riflesso (n. 2). 
A partire dai punti classificati come edificio sarà quindi possibile individuare in modo automatico l’insieme di quelli che appartengono alle singole falde del tetto, considerando la pendenza e i relativi rapporti di adiacenza, e delimitarli da polilinee tridimensionali. Partendo da questi elementi, con procedure manuali assistite dagli strumenti di editing del programma, si andrà a completare la modellazione dei corpi di fabbrica (nn. 3, 4). 
I passaggi completamente automatizzati di questo metodo danno luogo inevitabilmente a svariati errori, quindi sarà necessario un controllo analitico da parte dell’operatore il quale dovrà apportare le necessarie correzioni. 
Va insomma tenuto conto, in conclusione, che il postprocessamento dei dati acquisiti con laserscanner richiede procedure molto complesse e tempi lunghi soprattutto in ambito archeologico. A conti fatti nella maggior parte dei casi risulta più razionale realizzare modelli architettonici tridimensionali a partire da piante e sezioni bidimensionali che riportano correttamente tutti i contorni utili, successivamente georeferenziate in 3d, piuttosto che elaborare nuvole di milioni di punti, sovrabbondanti e di difficile lettura.  
In ogni caso resta centrale la capacità di interpretare i dati da parte dell’operatore che dovrà essere un archeologo — o uno studioso di architettura — e non un mero tecnico informatico. Per questi motivi è essenziale che gli archeologi — e più in generale gli operatori dei beni culturali — siano formati da parte dell’università alla conoscenza e alla gestione dei dati tramite la tecnologia informatica. I software di grafica in commercio sono numerosi e di non facile apprendimento, soprattutto quelli che gestiscono le procedure di modellazione più complesse. E’ importante quindi cercare di privilegiare quegli strumenti che siano dotati di interfacce amichevoli e consentano procedure relativamente più semplici. In questo senso tra i software di postprocessamento delle nuvole di punti meritano forse una particolare attenzione i prodotti che funzionano come plug-in all’interno di CAD generici favorendo l’immediata integrazione di dati di diversa provenienza.
 
 
 
 
 
 
 
 
 
 
 
 
 
 
 
 
 
 
 
 
 
 
 
 
figura 87a 
 
 
 
 
 
 
 
 
 
 
 
 
 
figura 87b 
 
 
 
 
 
 
 
 
 
 
 
 
 
 
 
 
 
 
 
 
 
 
 
 
 
 
 
 
 
figura 88a 
 
 
 
 
 
 
 
 
 
 
 
 
 
 
 
 
 
 
 
 
 
 
 
 
 
 
 
 
 
 
 
 
 
 
 
 
 
 
 
 
 
 
 
figura 88b 
 
 
 
 
 
 
 
 
 
 
 
 
 
 
 
 
 
 
 
 
 
 
 
 
 
figura 89 
 
 
 
 
 
 
 
 
 
 
 
 
 
 
 
 
 
 
 
 
 
 
 
 
 
 
 
 
 
 
 
 
 
 
 
 
 
 
 
 
 
 
 
 
 
 
 
 
 
 
 
 
 
 
figura 90 
 
 
 
 
 
 
 
figura 91a 
 
 
figura 91b 
 
 
 
 
 
 
figura 92a 
 
 
 
 
 
 
 
 
 
figura 92b 
 
 
 
 
 
 
 
 
 
figura 92c 
 
 
 
 
 
 
 
 
 
 
 
 
 
 
 
 
figura 93 
 
 
 
 
 
 
 
 
 
 
 
 
 
 
 
 
 
 
 
 
 
 
 
 
 
 
 
 
 
 
 
 
 
 
figura 94a 
 
 
 
 
 
 
 
 
 
 
 
 
 
 
 
 
 
 
 
 
 
 
 
 
figura 94b 
 
 
 
 
 
 
 
 
 
 
 
 
 
 
 
 
 
 
 
 
 
 
 
 
 
 
 
 
 
figura 95a 
 
 
 
 
figura 95b 
 
 
 
 
 
 
 
 
 
 
figura 96a 
 
 
 
 
 
 
 
figura 96b 
 
 
 
 
 
 
 
 
 
 
 
 
 
 
 
 
 
 
 
 
 
 
 
 
 
 
 
 
 
 
 
 
 
 
 
 
 
 
 
 
 
 
 
 
 
 
 
 
 
 
 
 
 
 
 
 
 
 
 
 
 
 
 
 
 
 
 
 
 
 
 
 
 
 
 
 
 
 
 
 
 
 
 
 
 
 
 
 
 
 
 
figura 97a 
 
 
figura 97b 
 
 
figura 97c 
 
 
 
 
 
 
 
 
 
 
 
 
 
 
 
 
 
 
 
 
 
 
figura 98 
 
 
 
 
 
 
 
 
 
 
 
 
 
 
 
 
 
 
 
 
 
 
 
 
 
 
 
 
 
 
 
 
 
 
 
 precedente
 
inizio pagina
successiva